厚木市まつかげ台2期 新築戸建 

3,580万円

神奈川県厚木市まつかげ台

小田急小田原線「本厚木」駅徒歩113分

価格
3,580万円
間取り/建物面積
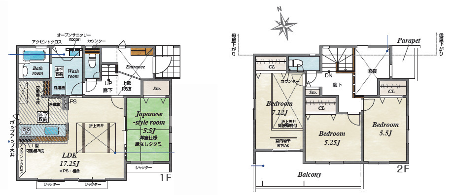
4LDK/100.81㎡
所在地
神奈川県厚木市まつかげ台
築年
2026年3月(予定)
駐車
-
交通

小田急小田原線本厚木」駅 徒歩113分

厚木市まつかげ台2期 新築戸建 の基本情報

物件名
厚木市まつかげ台2期 新築戸建 
価格
3,580万円
建物面積
100.81㎡
土地面積
47.2坪(156.04㎡)
築年月
2026年3月(予定)
総戸数
-
所在地
神奈川県厚木市まつかげ台
交通

小田急小田原線本厚木」駅 徒歩113分

厚木市まつかげ台2期 新築戸建 の詳細情報

設備条件
  • 建設住宅性能評価書付
  • 駐車2台可
  • 耐震構造
設備(その他)
    -
駐車場/月額
-/-
土地権利
所有権
国土法届出
不要
用途地域
第一種低層住居専用
取引態様
仲介
引渡し
相談
備考
厚木市まつかげ台2期 新築戸建 :小田急小田原線本厚木駅にも近くて便利。こちらの物件は、制震構造で安全性にとても優れています。新築ならではの「新しさ」がとても魅力です。吹き抜けとなっているので天井が高く、圧迫感もありません。当社はお客様の立場に立って小田急小田原線本厚木近くにある戸建て探しのサポートを致します。ご連絡は、0120-95-4548かotoiawase@sky-garden.co.jpにお待ちしております。

厚木市まつかげ台2期 新築戸建 のコメント(おすすめポイント)

徒歩10分の場所に厚木市立上荻野小学校があります。技術が進歩してきている制震構造で、地震を防いでくれます。折上天井の物件なら、後から色々とインテリアが堪能できます。吹き抜けの開放感が格の違いを演出しています。小田急小田原線本厚木近郊の一戸建てをお求めの方は、種類を豊富に取り揃えている0120-95-4548にご依頼下さい。otoiawase@sky-garden.co.jp、スカイガーデンより承っております。

厚木市まつかげ台2期 新築戸建 で募集中の物件

  1. 30.49坪 (100.81㎡)

    3,580万円(117.42万円/坪)

周辺施設

  • まつかげ台中公園の画像

    公園

    まつかげ台中公園

    190m(3分)

  • 厚木上荻野郵便局の画像

    郵便局

    厚木上荻野郵便局

    577m(8分)

  • 厚木市立上荻野小学校の画像

    小学校

    厚木市立上荻野小学校

    728m(10分)

  • たからや フレサ 上荻野店の画像

    スーパー

    たからや フレサ 上荻野店

    818m(11分)

  • クリエイトSD(エス・ディー) 厚木上荻野店の画像

    ドラッグストア

    クリエイトSD(エス・ディー) 厚木上荻野店

    988m(13分)

  • 厚木市立荻野中学校の画像

    中学校

    厚木市立荻野中学校

    1674m(21分)

近隣の物件

  1. 厚木市森の里4丁目

    4SLDK (117.58㎡)

    2,380万円

  2. 厚木市長谷

    4LDK (93.14㎡)

    3,180万円

  3. 厚木市下荻野

    3LDK (87.35㎡)

    2,749万円

  4. 厚木市及川2丁目

    3LDK (99.36㎡)

    3,980万円

よく見られている物件

  1. 平塚市菫平

    9LDK (162.39㎡)

    4,290万円

  2. 茅ヶ崎市菱沼1丁目

    4LDK (116.75㎡)

    5,980万円

  3. 秦野市戸川

    4LDK (80.55㎡)

    1,280万円

  4. 厚木市森の里4丁目

    4SLDK (117.58㎡)

    2,380万円

厚木市まつかげ台2期 新築戸建 

お気軽にお問い合わせください

LINEからお問い合わせ 無料お問い合わせ

スカイガーデン株式会社

0120-95-4548

9:00~19:00

(休:毎週火曜日/毎週水曜日)