厚木市森の里4丁目 中古戸建

2,380万円

神奈川県厚木市森の里4丁目

小田急小田原線「本厚木」駅バス27分「森の里3丁目」停歩6分

小田急小田原線「愛甲石田」駅バス17分「厚木西高校」停歩5分

価格
2,380万円
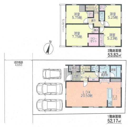
間取り/建物面積
4LDK/117.58㎡
所在地
神奈川県厚木市森の里4丁目
築年
1989年3月(築37年)
駐車
交通

小田急小田原線本厚木」駅 バス27分 「森の里3丁目」 停歩6分

小田急小田原線愛甲石田」駅 バス17分 「厚木西高校」 停歩5分

厚木市森の里4丁目 中古戸建の基本情報

物件名
厚木市森の里4丁目 中古戸建
価格
2,380万円
建物面積
117.58㎡
土地面積
64.4坪(212.91㎡)
築年月
1989年3月(築37年)
総戸数
-
所在地
神奈川県厚木市森の里4丁目
交通

小田急小田原線本厚木」駅 バス27分 「森の里3丁目」 停歩6分

小田急小田原線愛甲石田」駅 バス17分 「厚木西高校」 停歩5分

厚木市森の里4丁目 中古戸建の詳細情報

設備条件
  • 閑静な住宅地
設備(その他)
    -
駐車場/月額
有/0円
土地権利
所有権
国土法届出
不要
用途地域
-
取引態様
一般媒介
引渡し
相談
備考
厚木市森の里4丁目 中古戸建:小田急小田原線本厚木駅にも近くて便利。薬や日用品を買うのに便利なミキ薬局森の里店まで、457mです。こちらは中古の戸建て物件です。60坪以上の土地があるので、様々な用途に合わせた設計が可能です。まずはスカイガーデンのスタッフにご希望条件をお申し付けください。条件にマッチした不動産情報をご用意いたします。

厚木市森の里4丁目 中古戸建のコメント(おすすめポイント)

前面道路6m以上の物件です。60坪以上の土地があるので、様々な用途に合わせた設計が可能です。こちらの物件は中古戸建物件です。当社は知識とノウハウを活かし、厚木市の小田急小田原線本厚木周辺で満足のいく一戸建てをお探し致します。

厚木市森の里4丁目 中古戸建で募集中の物件

  1. 35.56坪 (117.58㎡)

    2,380万円(66.93万円/坪)

周辺施設

  • 厚木森の里郵便局の画像

    郵便局

    厚木森の里郵便局

    260m(4分)

  • 森の里病院の画像

    総合病院

    森の里病院

    375m(5分)

  • クオール薬局森の里店の画像

    ドラッグストア

    クオール薬局森の里店

    385m(5分)

  • 三和 森の里店の画像

    スーパー

    三和 森の里店

    441m(6分)

  • ミキ薬局森の里店の画像

    ドラッグストア

    ミキ薬局森の里店

    457m(6分)

  • 厚木市立森の里小学校の画像

    小学校

    厚木市立森の里小学校

    460m(6分)

  • 厚木市立森の里中学校の画像

    中学校

    厚木市立森の里中学校

    515m(7分)

  • 若宮公園の画像

    公園

    若宮公園

    659m(9分)

  • セブンイレブン NTT厚木研究開発センター店の画像

    コンビニエンスストア

    セブンイレブン NTT厚木研究開発センター店

    1320m(17分)

  • 県立七沢森林公園の画像

    公園

    県立七沢森林公園

    1546m(20分)

  • JAあつぎ玉川支所の画像

    銀行

    JAあつぎ玉川支所

    1551m(20分)

  • 厚木市役所 南毛利学習支援センターの画像

    市役所・区役所

    厚木市役所 南毛利学習支援センター

    4256m(54分)

近隣の物件

  1. 厚木市愛甲西2丁目

    4LDK (105.57㎡)

    4,580万円

  2. 厚木市長谷

    4LDK (93.14㎡)

    3,180万円

  3. 厚木市下荻野

    3LDK (87.35㎡)

    2,749万円

  4. 厚木市林2丁目

    4LDK (105.99㎡)

    4,080万円

よく見られている物件

  1. 平塚市菫平

    9LDK (162.39㎡)

    4,290万円

  2. 茅ヶ崎市菱沼1丁目

    4LDK (116.75㎡)

    5,980万円

  3. 秦野市戸川

    4LDK (80.55㎡)

    1,280万円

  4. 秦野市春日町

    4LDK (141.14㎡)

    2,100万円

厚木市森の里4丁目 中古戸建

お気軽にお問い合わせください

LINEからお問い合わせ 無料お問い合わせ

スカイガーデン株式会社

0120-95-4548

9:00~19:00

(休:毎週火曜日/毎週水曜日)