鎌倉市材木座5丁目 中古戸建

8,580万円

神奈川県鎌倉市材木座5丁目

横須賀線「鎌倉」駅徒歩18分

価格
8,580万円
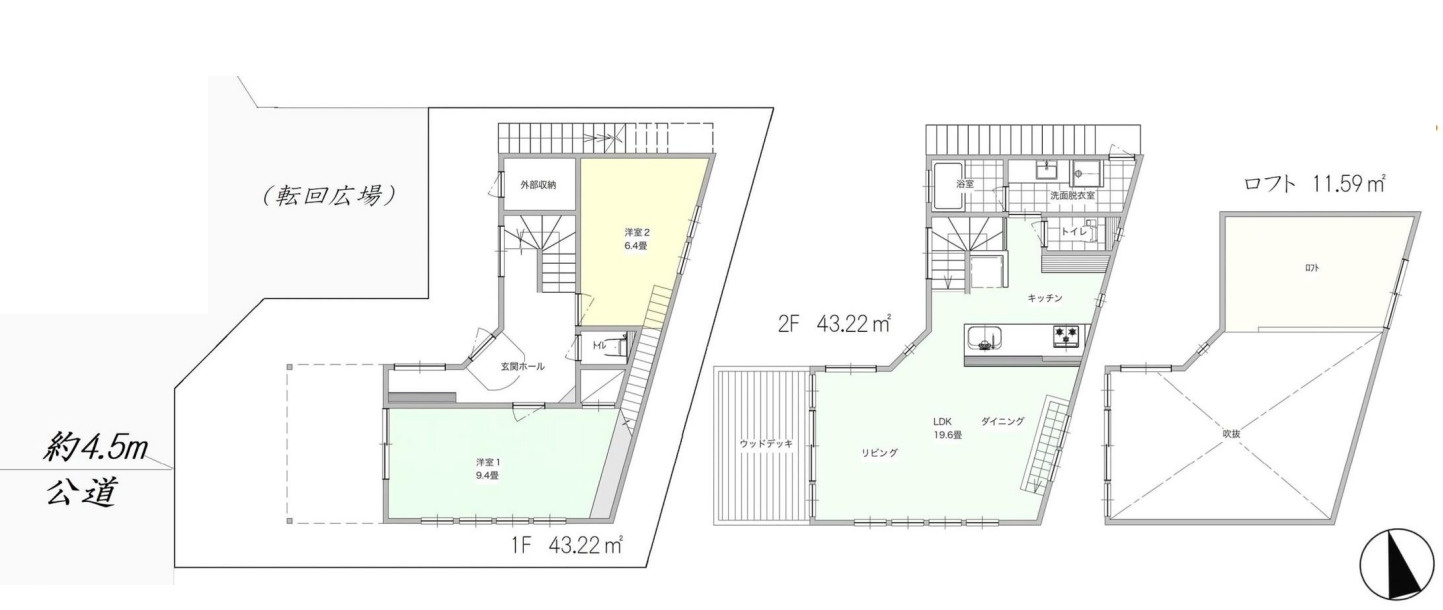
間取り
2LDK
土地面積
108.31㎡
所在地
神奈川県鎌倉市材木座5丁目
交通

横須賀線鎌倉」駅 徒歩18分

建物面積
86.44㎡
築年月
2002年10月(築23年)

物件の特徴

  • カウンターキッチン

  • 独立洗面台

セールスポイント

全室洋室の物件です。室内の空間を立体的に使えるロフト付です。2LDKで、快適なキッチンとリビングになっています。建物面積86.44㎡の物件はいかがですか。スカイガーデンが鎌倉市のマイホームをご紹介致します。お引っ越しを検討しているなら、0120-500-791までお問い合わせください。きっと満足頂ける一戸建てが見つかります。

ポイント

全居室洋室 2階リビング ロフト ウッドデッキ 対面式キッチン

担当者のコメント

薬や日用品を買うのに便利なクリエイトSD鎌倉材木座店まで309mです。建物面積は86.44㎡です。値段がお手ごろな中古戸建てはいかがでしょうか。まずお先に0120-500-791、otoiawase-fujisawa@sky-garden.co.jpまでご要望をお申し付け下さい。鎌倉市にあるお望みの一戸建てを、スカイガーデンがご提供致します。

この度は、数ある不動産会社の中からスカイガーデン株式会社の物件情報をご覧になって頂き誠に有難う御座います。 スカイガーデンには経験豊富なスタッフが揃っています!! また、自社施工によるリノベーション、リフォーム工事、住宅ローンや保険、不動産に関する税金法律その他各種手続きのことなど何でもお気軽にご相談ください。 お客様にいかに喜んでいただけるかを心がけています。 ●営業時間 午前9時00分~午後7時00分 (定休日:毎週火曜日、毎週水曜日) 営業時間内はお電話でのお問い合わせがスムーズにご案内できます。 お気軽にお電話ください。 スタッフ一同、心よりお待ちしておりますので宜しくお願い致します。

基本情報

販売戸数
-
総戸数
-
間取り / 詳細
2LDK
向き
-
建物面積(坪数)
86.44㎡(26.14坪)
土地面積(坪数)
108.31㎡(32.76坪)
建ぺい率 /
容積率
60%/180%
築年月
2002年10月(築23年)
駐車場 /
月額料金
有 0円
土地権利
所有権
土地
(敷金 / 保証金)
- / -
建物構造
木造 / 2階建
傾斜地部分面積
-
路地状敷地
-
私道負担面積
-
セットバック
高圧線下面積
-
施工会社
-
用途地域
第一種住居
地目 / 地勢
宅地 / 平坦
接道状況
一方(西 公道 4.5m)
国土法届出要否
不要
都市計画
市街化区域
総区画数 /
販売区画数
-/-
現況
空家
その他
法令上の制限
-
取引態様
仲介
引渡し
相談
取引条件の
有効期限
2025年12月25日

設備条件

設備条件
  • 海が近い / ロフト付き / 都市ガス / 公営水道 / 公共下水 / カウンターキッチン / 洗面台 / トイレ2ヶ所 / 独立洗面台
設備(その他)
    -

その他

物件番号
96899475
管理コード
100135617150
建築確認番号
-
情報更新日
2025年12月11日
次回更新予定日
2025年12月25日
取扱会社
  • スカイガーデン株式会社 藤沢店
  • 神奈川県藤沢市鵠沼神明1丁目5番16号 ケインズビル 3階
  • TEL:0120-500-791
  • 神奈川県知事 (2) 第29933号
  • 加盟団体 公益社団法人 神奈川県宅地建物取引業協会
    公益社団法人 首都圏不動産公正取引協議会会員
    公益財団法人 東日本不動産流通機構会員
備考
こだわりポイント満載の鎌倉市材木座5丁目 中古戸建。海が近く、いつでも海岸沿いを散歩できます。リビングには吹き抜けが設けられ、室内の空気の循環も良好です。鎌倉市エリアで住まい探しをするのであれば、当社までご連絡ください。otoiawase-fujisawa@sky-garden.co.jpからご不明な点などをお問い合わせ頂けます。

周辺施設

  • 材木座海岸の画像

    その他

    材木座海岸

    180m(3分)

  • クリエイトSD鎌倉材木座店の画像

    ドラッグストア

    クリエイトSD鎌倉材木座店

    309m(4分)

  • 鎌倉海浜公園の画像

    公園

    鎌倉海浜公園

    717m(9分)

  • YAMAKA(ヤマカ) 鎌倉店の画像

    スーパー

    YAMAKA(ヤマカ) 鎌倉店

    1096m(14分)

支払いシミュレーション

月々の支払額
9.6
購入希望物件価格
万円
頭金
万円
金利
%
返済額(ボーナス1回分)
万円
返済期間

※ボーナスは自動で年2回分で計算されます。

近隣の物件

  1. 鎌倉市津 中古戸建

    鎌倉市津

    7LDK (273.41㎡)

    12,600万円

  2. 鎌倉市今泉台第5 新築戸建 全1棟1号棟

    鎌倉市今泉台7丁目

    4LDK (98.82㎡)

    4,880万円

  3. 鎌倉市関谷第4 新築戸建 全2棟2号棟

    鎌倉市関谷

    4LDK (93.14㎡)

    3,780万円

  4. 鎌倉市雪ノ下1丁目 中古戸建

    鎌倉市雪ノ下1丁目

    4SLDK (228.18㎡)

    26,800万円

鎌倉市材木座5丁目 中古戸建

鎌倉市材木座5丁目 中古戸建

8,580万円

-

2LDK(86.44㎡)

お気軽にお問い合わせください

無料お問い合わせ

スカイガーデン株式会社 藤沢店

0120-500-791

9:00~19:00

(休:毎週火曜・水曜)