平塚市南金目 新築戸建 全2棟1号棟

3,180万円

神奈川県平塚市南金目

東海道本線「平塚」駅バス22分「片岡」停歩7分

価格
3,180万円
間取り/建物面積
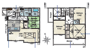
4LDK/97.14㎡
所在地
神奈川県平塚市南金目
築年
2025年12月(予定)
駐車
交通

東海道本線平塚」駅 バス22分 「片岡」 停歩7分

平塚市南金目 新築戸建 全2棟1号棟の基本情報

物件名
平塚市南金目 新築戸建 全2棟1号棟
価格
3,180万円
建物面積
97.14㎡
土地面積
37.12坪(122.72㎡)
築年月
2025年12月(予定)
総戸数
-
所在地
神奈川県平塚市南金目
交通

東海道本線平塚」駅 バス22分 「片岡」 停歩7分

平塚市南金目 新築戸建 全2棟1号棟の詳細情報

設備条件
  • 建設住宅性能評価書付
  • 駐車2台可
  • 耐震構造
設備(その他)
    -
駐車場/月額
有/0円
土地権利
所有権
国土法届出
不要
用途地域
第一種住居
取引態様
仲介
引渡し
相談
備考
徒歩11分の場所に平塚市立金目小学校があります。折上天井を利用して、色々なインテリアを楽しむ事が出来ます。こちらの物件は、制震構造で安全性にとても優れています。多くの方から高いニーズのある、内装もピカピカの新築戸建ての物件です。一戸建て探しなら東海道本線平塚周辺の地域に強い当社にお任せください。

平塚市南金目 新築戸建 全2棟1号棟のコメント(おすすめポイント)

内外装共に綺麗な新築戸建ての物件はいかがでしょうか。地震のエネルギーを吸収する、制震構造になっています。天井の高さを気にされるなら、折上天井の物件を検討してみて下さい。平塚市で、お客様がお望みのマイホームをスカイガーデンが見つけます。

平塚市南金目 新築戸建 全2棟1号棟で募集中の物件

  1. 29.38坪 (97.14㎡)

    3,180万円(108.24万円/坪)

周辺施設

  • 中栄信用金庫金目支店の画像

    銀行

    中栄信用金庫金目支店

    315m(4分)

  • ファミリーマート 平塚片岡店の画像

    コンビニエンスストア

    ファミリーマート 平塚片岡店

    428m(6分)

  • 平塚西郵便局の画像

    郵便局

    平塚西郵便局

    562m(8分)

  • セブンイレブン 平塚南金目店の画像

    コンビニエンスストア

    セブンイレブン 平塚南金目店

    687m(9分)

  • ウエルシア平塚南金目店の画像

    ドラッグストア

    ウエルシア平塚南金目店

    706m(9分)

  • 平塚市立金目中学校の画像

    中学校

    平塚市立金目中学校

    744m(10分)

  • 平塚市立金目小学校の画像

    小学校

    平塚市立金目小学校

    815m(11分)

  • つくし幼稚園の画像

    幼稚園

    つくし幼稚園

    1288m(17分)

  • 金目親水公園の画像

    公園

    金目親水公園

    1669m(21分)

  • 金目おむすび保育園の画像

    保育園

    金目おむすび保育園

    1685m(22分)

  • ロピア湘南めぐみが丘店の画像

    スーパー

    ロピア湘南めぐみが丘店

    1760m(22分)

  • ヨークマート 北金目店の画像

    スーパー

    ヨークマート 北金目店

    1801m(23分)

近隣の物件

  1. 平塚市東中原2丁目

    4LDK (100.19㎡)

    3,980万円

  2. 平塚市東中原2丁目

    4LDK (99.36㎡)

    3,680万円

  3. 平塚市中里

    4LDK (101.43㎡)

    4,080万円

  4. 平塚市東中原2丁目

    4LDK (101.02㎡)

    3,680万円

平塚市南金目 新築戸建 全2棟1号棟

お気軽にお問い合わせください

LINEからお問い合わせ 無料お問い合わせ

スカイガーデン株式会社

0120-95-4548

9:00~19:00

(休:毎週火曜日/毎週水曜日)