平塚市唐ケ原 中古戸建

11月6日 値下げ

4,880万円

神奈川県平塚市唐ケ原

東海道本線「平塚」駅バス12分「東町三丁目」停歩6分

価格
4,880万円
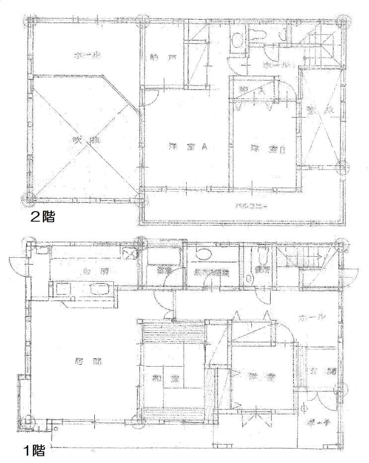
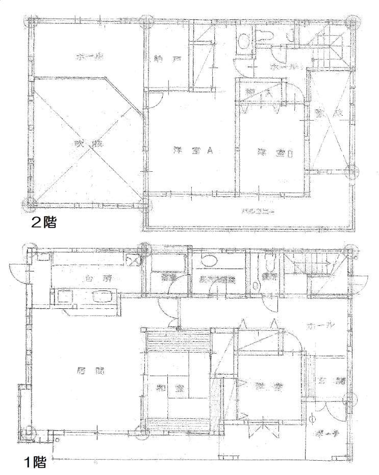
間取り
4SLDK
土地面積
280.83㎡
所在地
神奈川県平塚市唐ケ原
交通

東海道本線平塚」駅 バス12分 「東町三丁目」 停歩6分

建物面積
147.66㎡
築年月
1999年10月(築26年)

物件の特徴

  • カウンターキッチン

セールスポイント

4SLDKの間取りです。フローリングなので、どんな世代の方にもなじみます。今回紹介するのは、建物面積が147.66平米。布団の収納にピッタリな押入があります。住まい選びのお手伝いを当社にさせていただけませんか。お客様が安心して暮らしていける不動産の紹介をしています。ぜひ当社の利用をご検討ください。

ポイント

納戸 リビングの隣和室 スーパーが近い 駐車2台可 バルコニー

担当者のコメント

浦田 泰紀

リビングと和室が一続きとなっていますが個別での使用も可能です。4SLDKの間取りです。玄関ポーチがあるので、雨にぬらさずにベビーカーを置けます。洋室をご希望の方、こちらのフローリング物件はいかがですか。東海道本線平塚近くの地域に強い当社スタッフが住まい探しをサポート致します。お引っ越しを検討しているなら、ぜひお気軽にご連絡ください。

この度は、数ある不動産会社の中からスカイガーデン株式会社の物件情報をご覧になって頂き誠に有難う御座います。
スカイガーデンには経験豊富なスタッフが揃っています!! また、自社施工によるリノベーション、リフォーム工事、住宅ローンや保険、不動産に関する税金法律その他各種手続きのことなど何でもお気軽にご相談ください。 お客様にいかに喜んでいただけるかを心がけています。 ●営業時間 午前9時00分~午後7時00分 (定休日:毎週火曜日、毎週水曜日) 営業時間内はお電話でのお問い合わせがスムーズにご案内できます。 お気軽にお電話ください。
スタッフ一同、心よりお待ちしておりますので宜しくお願い致します。

基本情報

販売戸数
-
総戸数
-
間取り / 詳細
4SLDK
向き
-
建物面積(坪数)
147.66㎡(44.66坪)
土地面積(坪数)
280.83㎡(84.95坪)
建ぺい率 /
容積率
60%/200%
築年月
1999年10月(築26年)
駐車場 / 月額
有 / 0円
土地権利
所有権
土地
(敷金 / 保証金)
- / -
建物構造
木造 / 2階建
傾斜地部分面積
-
路地状敷地
-
私道負担面積
-
セットバック
記載なし
高圧線下面積
-
施工会社
-
用途地域
第一種住居
地目 / 地勢
宅地 / 平坦
接道状況
一方(東 公道 4.0m)
国土法届出要否
不要
都市計画
市街化区域
総区画数 /
販売区画数
-/-
現況
居住中
その他
法令上の制限
-
取引態様
仲介
引渡し
相談
取引条件の
有効期限
2026年04月30日

設備条件

設備条件
  • フローリング / バルコニー / プロパンガス / 公営水道 / 公共下水 / 駐車2台可 / カウンターキッチン / トイレ2ヶ所
設備(その他)
    -

その他

物件番号
89530020
管理コード
100131397314
建築確認番号
-
情報更新日
2026年04月16日
次回更新予定日
2026年04月30日
取扱会社
  • スカイガーデン株式会社
  • 神奈川県平塚市四之宮5丁目27-17 
  • TEL:0120-95-4548
  • 神奈川県知事 (2) 第29933号
  • 公益社団法人 神奈川県宅地建物取引業協会
    公益社団法人 首都圏不動産公正取引協議会会員
    公益財団法人 東日本不動産流通機構会員
    一般社団法人 住宅ローンに“困ったときの”あなたの街の相談窓口【神奈川西湘窓口】
備考
雨天時でも濡れずに戸締りや傘の準備ができる玄関ポーチが付いています。ものが多くサービスルームが欲しい方にも嬉しい4SLDK。スーパーが近くにあるので、買い物が楽です。対面式キッチンなら、リビングと繋がっているので開放感溢れる空間を演出できます。不動産の購入は、人生の中でも大きなターニングポイントです。後悔の無いよう当社スタッフが全力でサポートするので、お気軽にお問合せ下さい。

周辺施設

  • クリエイトSD大磯店の画像

    ドラッグストア

    クリエイトSD大磯店

    560m(7分)

  • たまや大磯店の画像

    スーパー

    たまや大磯店

    563m(8分)

  • ファミリーマート 平塚虹ヶ浜店の画像

    コンビニエンスストア

    ファミリーマート 平塚虹ヶ浜店

    721m(10分)

支払いシミュレーション

月々の支払額

※実際の金額と異なる場合があります。

購入希望物件価格
万円
頭金
万円
金利
%
返済額(ボーナス1回分)
万円
返済期間

※ボーナスは自動で年2回分で計算されます。

近隣の物件

  1. 平塚市菫平 中古戸建(へーベルハウス施工の築浅戸建)

    平塚市菫平

    9LDK (162.39㎡)

    4,290万円

  2. 平塚市小鍋島第1 新築戸建 全2棟2号棟

    平塚市小鍋島

    4LDK (108.48㎡)

    3,880万円

  3. 平塚市小鍋島第1 新築戸建 全2棟1号棟

    平塚市小鍋島

    4LDK (106.82㎡)

    3,980万円

  4. 平塚市山下第14 新築戸建 全1棟1号棟

    平塚市山下1丁目

    3LDK (93.96㎡)

    2,880万円

よく見られている物件

  1. 平塚市菫平 中古戸建(へーベルハウス施工の築浅戸建)

    平塚市菫平

    9LDK (162.39㎡)

    4,290万円

  2. 茅ヶ崎市菱沼1丁目 中古戸建

    茅ヶ崎市菱沼1丁目

    4LDK (116.75㎡)

    5,980万円

  3. 秦野市戸川 中古戸建

    秦野市戸川

    4LDK (80.55㎡)

    1,280万円

  4. 秦野市春日町 中古戸建

    秦野市春日町

    4LDK (141.14㎡)

    2,100万円

平塚市唐ケ原 中古戸建

平塚市唐ケ原 中古戸建

4,880万円

-

4SLDK(147.66㎡)

お気軽にお問い合わせください

LINEからお問い合わせ 無料お問い合わせ

スカイガーデン株式会社

0120-95-4548

9:00~19:00

(休:毎週火曜日/毎週水曜日)