平塚市ふじみ野2丁目の新築一戸建

3,780万円

神奈川県平塚市ふじみ野2丁目

小田急小田原線「伊勢原」駅バス11分「ふじみ野」停歩2分

価格
3,780万円
間取り/建物面積
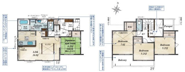
4LDK/98.95㎡
所在地
神奈川県平塚市ふじみ野2丁目
築年
2026年2月(予定)
駐車
交通

小田急小田原線伊勢原」駅 バス11分 「ふじみ野」 停歩2分

平塚市ふじみ野2丁目の新築一戸建の基本情報

物件名
平塚市ふじみ野2丁目の新築一戸建
価格
3,780万円
建物面積
98.95㎡
土地面積
46.87坪(154.97㎡)
築年月
2026年2月(予定)
総戸数
-
所在地
神奈川県平塚市ふじみ野2丁目
交通

小田急小田原線伊勢原」駅 バス11分 「ふじみ野」 停歩2分

平塚市ふじみ野2丁目の新築一戸建の詳細情報

設備条件
  • 建設住宅性能評価書付
  • 住宅性能保証付
  • 駐車3台可
  • 耐震構造
設備(その他)
    -
駐車場/月額
有/0円
土地権利
所有権
国土法届出
不要
用途地域
第一種低層住居専用
取引態様
仲介
引渡し
相談
備考
徒歩18分の場所に平塚市立岡崎小学校があります。地震が心配な方におすすめの制震構造が強化された物件です。新築にこだわりをもつ方には、こちらの新築物件はいかがでしょうか。令和8年2月築の物件となり、室内も綺麗です。スカイガーデンが自信を持って紹介するのは、平塚市にある不動産情報です。移住をお考えなら、お気軽にお問い合わせください。

平塚市ふじみ野2丁目の新築一戸建のコメント(おすすめポイント)

夢のマイホームは思い切って新築の戸建てはいかがでしょうか。快適な室内環境のある、2026年2月築の物件となります。新築ならではの「新しさ」がとても魅力です。こちらの物件は地震エネルギーを吸収し揺れを抑えられる制震構造です。平塚市にある小田急小田原線伊勢原近郊の一戸建てをお求めの方は、0120-95-4548までご希望の条件をお気軽にお申し付け下さい。

平塚市ふじみ野2丁目の新築一戸建で募集中の物件

  1. 29.93坪 (98.95㎡)

    3,780万円(126.29万円/坪)

周辺施設

  • ローソン 伊勢原岡崎店の画像

    コンビニエンスストア

    ローソン 伊勢原岡崎店

    323m(5分)

  • 平塚岡崎郵便局の画像

    郵便局

    平塚岡崎郵便局

    563m(8分)

  • ユーコープ 岡崎店の画像

    スーパー

    ユーコープ 岡崎店

    700m(9分)

  • おかざき薬局の画像

    ドラッグストア

    おかざき薬局

    730m(10分)

  • 幼保連携型認定こども園伊勢原ひかり幼稚園の画像

    幼稚園

    幼保連携型認定こども園伊勢原ひかり幼稚園

    1101m(14分)

  • 平塚市立岡崎小学校の画像

    小学校

    平塚市立岡崎小学校

    1400m(18分)

  • 山田内科胃腸科クリニックの画像

    総合病院

    山田内科胃腸科クリニック

    1501m(19分)

  • 千津ふれあい公園の画像

    公園

    千津ふれあい公園

    1823m(23分)

  • 平塚市立大住中学校の画像

    中学校

    平塚市立大住中学校

    2635m(33分)

近隣の物件

  1. 平塚市山下1丁目

    3LDK (93.96㎡)

    3,080万円

  2. 平塚市菫平

    9LDK (162.39㎡)

    4,290万円

  3. 平塚市東中原2丁目

    4LDK (101.02㎡)

    3,280万円

  4. 平塚市徳延

    4LDK (82.62㎡)

    2,488万円

平塚市ふじみ野2丁目の新築一戸建

お気軽にお問い合わせください

LINEからお問い合わせ 無料お問い合わせ

スカイガーデン株式会社

0120-95-4548

9:00~19:00

(休:毎週火曜日/毎週水曜日)