小田原市国府津 新築戸建 全4棟2号棟

12月8日 値下げ

3,180万円

神奈川県小田原市国府津

東海道本線「国府津」駅徒歩13分

価格
3,180万円
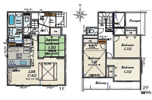
間取り
4LDK
土地面積
151.35㎡
所在地
神奈川県小田原市国府津
交通

東海道本線国府津」駅 徒歩13分

建物面積
99.39㎡
築年月
2025年11月(予定)

物件の特徴

  • カウンターキッチン

セールスポイント

広々としたリビングに充実設備のキッチンを備えた4LDK。リビングの隣が和室となっているので、一続きで使用できます。動線を意識したデザインのシステムキッチン付きで作業能率が上がります。初めてのマイホームに新築戸建てはいかがでしょうか。お客様が安心して暮らしていける不動産の紹介をしています。ぜひ当社の利用をご検討ください。

ポイント

リビングの隣和室 玄関吹抜け 食器洗乾燥機 耐震構造 南面バルコニー

担当者のコメント

中村 千夏

夢のマイホームは思い切って新築の戸建てはいかがでしょうか。家族におすすめな4LDK。設備も充実しています。家族が多い方には、2台の駐車が可能なので、便利です。建設住宅性能評価付なので地震保険などが優遇されやすいです。不動産探しで重視しているポイントを、当社にお聞かせください。当社は数多くの不動産情報を取り扱っております。ぜひ当社の利用をご検討ください。

物件は、住宅性能評価制度において第三者機関の評価員から住宅性能を(設計、建設)取得しています。
火災保険の地震保険については最大50%割引となる物件です。
当社へお問合せを頂いたお客様には担当者が責任を持ってご説明からさせて頂きますのでお気軽にお問合せ下さい。

スカイガーデンには経験豊富なスタッフが揃っています!!
また、自社施工によるリノベーションやリフォーム工事、住宅ローンや保険、不動産に関する税金法律その他各種手続きのことなど何でもお気軽にご相談ください。
お客様にいかに喜んでいただけるかを心がけています。

●営業時間 午前9時00分~午後7時00分 (定休日:毎週火曜日、毎週水曜日)
営業時間内はお電話でのお問い合わせがスムーズにご案内できます。
お気軽にお電話ください。

基本情報

販売戸数
-
総戸数
-
間取り / 詳細
4LDK
向き
-
建物面積(坪数)
99.39㎡(30.06坪)
土地面積(坪数)
151.35㎡(45.78坪)
建ぺい率 /
容積率
60%/200%
築年月
2025年11月(予定)
駐車場 /
月額料金
有 0円
土地権利
所有権
土地
(敷金 / 保証金)
- / -
建物構造
木造 / 2階建
傾斜地部分面積
-
路地状敷地
-
私道負担面積
-
セットバック
記載なし
高圧線下面積
-
施工会社
-
用途地域
準住居
地目 / 地勢
宅地 / -
接道状況
一方(東 公道 4.0m)
国土法届出要否
不要
都市計画
市街化区域
総区画数 /
販売区画数
-/-
現況
未完成
その他
法令上の制限
-
取引態様
仲介
引渡し
相談
取引条件の
有効期限
2025年12月25日

設備条件

設備条件
  • 建設住宅性能評価書付 / フローリング / プロパンガス / 公営水道 / 公共下水 / 駐車2台可 / 耐震構造 / 食器洗い乾燥機 / システムキッチン / カウンターキッチン / トイレ2ヶ所 / 床下収納
設備(その他)
    -

その他

物件番号
97605063
管理コード
100136043127
建築確認番号
第R07SHC108153号
情報更新日
2025年12月11日
次回更新予定日
2025年12月25日
取扱会社
  • スカイガーデン株式会社
  • 神奈川県平塚市四之宮5丁目27-17 
  • TEL:0120-95-4548
  • 神奈川県知事 (2) 第29933号
  • 公益社団法人 神奈川県宅地建物取引業協会
    公益社団法人 首都圏不動産公正取引協議会会員
    公益財団法人 東日本不動産流通機構会員
    一般社団法人 住宅ローンに“困ったときの”あなたの街の相談窓口【神奈川西湘窓口】
備考
日用品を揃えるのに便利なホームセンター「スーパービバホーム 小田原国府津店」まで、455mです。フラットでも独立でも使用でき、リビング隣の和室は機能的です。当社はお客様が快適に暮らせるよう、住まい探しのサポートをしております。ご希望の条件があれば、当社スタッフにお聞かせください。

周辺施設

  • 小田原市立国府津小学校の画像

    小学校

    小田原市立国府津小学校

    421m(6分)

  • ファミリーマート 小田原小八幡店の画像

    コンビニエンスストア

    ファミリーマート 小田原小八幡店

    448m(6分)

  • スーパービバホーム 小田原国府津店の画像

    ホームセンター

    スーパービバホーム 小田原国府津店

    455m(6分)

  • ローソン・スリーエフ 国府津岡店の画像

    コンビニエンスストア

    ローソン・スリーエフ 国府津岡店

    506m(7分)

  • 小田原市立国府津中学校の画像

    中学校

    小田原市立国府津中学校

    551m(7分)

  • ユーコープ国府津店の画像

    スーパー

    ユーコープ国府津店

    558m(7分)

  • フレスポ小田原シティモールの画像

    ショッピングセンター

    フレスポ小田原シティモール

    809m(11分)

  • ニトリ 小田原店の画像

    インテリア

    ニトリ 小田原店

    909m(12分)

  • セブンイレブン 小田原国府津北店の画像

    コンビニエンスストア

    セブンイレブン 小田原国府津北店

    918m(12分)

  • 酒匂郵便局の画像

    郵便局

    酒匂郵便局

    2044m(26分)

支払いシミュレーション

月々の支払額
9.6
購入希望物件価格
万円
頭金
万円
金利
%
返済額(ボーナス1回分)
万円
返済期間

※ボーナスは自動で年2回分で計算されます。

近隣の物件

  1. 小田原市酒匂2丁目 中古戸建

    小田原市酒匂2丁目

    4LDK (104.32㎡)

    1,898万円

  2. 小田原市新屋 中古戸建

    小田原市新屋

    4LDK (108.23㎡)

    1,780万円

  3. 小田原市小八幡4丁目 中古戸建

    小田原市小八幡4丁目

    5DK (133.57㎡)

    2,000万円

  4. 小田原市中里 中古戸建

    小田原市中里

    4DK (102.18㎡)

    2,400万円

小田原市国府津 新築戸建 全4棟2号棟

小田原市国府津 新築戸建 全4棟2号棟

3,180万円

-

4LDK(99.39㎡)

お気軽にお問い合わせください

LINEからお問い合わせ 無料お問い合わせ

スカイガーデン株式会社

0120-95-4548

9:00~19:00

(休:毎週火曜日/毎週水曜日)