茅ヶ崎市今宿1期 新築戸建 全4棟1号棟

3,590万円

神奈川県茅ヶ崎市今宿

東海道本線「茅ケ崎」駅バス11分神奈川中央交通「中島(茅ヶ崎市)」停歩5分

価格
3,590万円
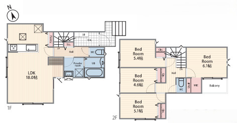
間取り/建物面積
4LDK/93.78㎡
所在地
神奈川県茅ヶ崎市今宿
築年
2025年12月(新築)
駐車
交通

東海道本線茅ケ崎」駅 バス11分 神奈川中央交通「中島(茅ヶ崎市)」 停歩5分

茅ヶ崎市今宿1期 新築戸建 全4棟1号棟の基本情報

物件名
茅ヶ崎市今宿1期 新築戸建 全4棟1号棟
価格
3,590万円
建物面積
93.78㎡
土地面積
29.72坪(98.28㎡)
築年月
2025年12月(新築)
総戸数
-
所在地
神奈川県茅ヶ崎市今宿
交通

東海道本線茅ケ崎」駅 バス11分 神奈川中央交通「中島(茅ヶ崎市)」 停歩5分

茅ヶ崎市今宿1期 新築戸建 全4棟1号棟の詳細情報

設備条件
  • 閑静な住宅地
  • 駐車2台可
  • 宅配ボックス
設備(その他)
    -
駐車場/月額
有/0円
土地権利
所有権
国土法届出
不要
用途地域
-
取引態様
仲介
引渡し
相談
備考
快適な室内環境のある、令和7年12月築の物件となります。新築の戸建て物件です。不動産のことなら、当社にご用命ください。豊富な経験と知識を持つ当社なら、お客様のご希望に沿った物件のご紹介をいたします。

茅ヶ崎市今宿1期 新築戸建 全4棟1号棟のコメント(おすすめポイント)

家から446mのところに、薬や日用品を買うのに便利なクリエイトSD茅ケ崎今宿店があります。下ノ川公園が物件から316mのところにあります。2025年12月築の物件です。こだわりの設備が整った新築物件です。東海道本線茅ケ崎周辺で戸建て選びをするなら、スカイガーデンがプロとして適格なアドバイスをご提供致します。

茅ヶ崎市今宿1期 新築戸建 全4棟1号棟で募集中の物件

  1. 28.36坪 (93.78㎡)

    3,590万円(126.59万円/坪)

周辺施設

  • マクドナルド 茅ケ崎今宿店の画像

    ファーストフード

    マクドナルド 茅ケ崎今宿店

    191m(3分)

  • 宇佐美 1号茅ヶ崎の画像

    ガソリンスタンド

    宇佐美 1号茅ヶ崎

    288m(4分)

  • 下ノ川公園の画像

    公園

    下ノ川公園

    316m(4分)

  • セブンイレブン 茅ヶ崎今宿東店の画像

    コンビニエンスストア

    セブンイレブン 茅ヶ崎今宿東店

    321m(5分)

  • くら寿司茅ヶ崎今宿店の画像

    寿司

    くら寿司茅ヶ崎今宿店

    340m(5分)

  • クリエイトSD茅ケ崎今宿店の画像

    ドラッグストア

    クリエイトSD茅ケ崎今宿店

    446m(6分)

  • 茅ヶ崎今宿郵便局の画像

    郵便局

    茅ヶ崎今宿郵便局

    522m(7分)

  • 茅ヶ崎市立今宿小学校の画像

    小学校

    茅ヶ崎市立今宿小学校

    827m(11分)

  • 茅ヶ崎市立萩園中学校の画像

    中学校

    茅ヶ崎市立萩園中学校

    1035m(13分)

近隣の物件

  1. 茅ヶ崎市菱沼1丁目

    4LDK (116.75㎡)

    5,980万円

  2. 茅ヶ崎市みずき2丁目

    3LDK (109.30㎡)

    5,780万円

  3. 茅ヶ崎市高田2丁目

    3LDK (95.00㎡)

    2,680万円

  4. 茅ヶ崎市南湖6丁目

    3LDK (95.22㎡)

    5,499万円

よく見られている物件

  1. 秦野市春日町

    4SLDK (143.96㎡)

    2,480万円

  2. 茅ヶ崎市菱沼1丁目

    4LDK (116.75㎡)

    5,980万円

  3. 秦野市戸川

    4LDK (80.55㎡)

    1,280万円

  4. 平塚市菫平

    9LDK (162.39㎡)

    4,290万円

茅ヶ崎市今宿1期 新築戸建 全4棟1号棟

お気軽にお問い合わせください

無料お問い合わせ

スカイガーデン株式会社 藤沢店

0120-500-791

9:00~19:00

(休:毎週火曜・水曜)