二宮町山西 中古戸建

2月15日 値下げ

1,480万円

神奈川県中郡二宮町山西

東海道本線「二宮」駅バス6分「南3号前」停歩14分

価格
1,480万円
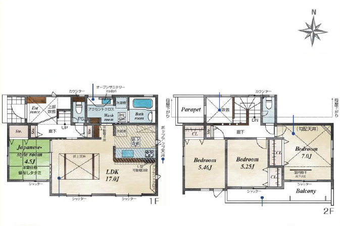
間取り
4LDK
土地面積
132.42㎡
所在地
神奈川県中郡二宮町山西
交通

東海道本線二宮」駅 バス6分 「南3号前」 停歩14分

建物面積
107.65㎡
築年月
1995年1月(築31年)

物件の特徴

  • カウンターキッチン

セールスポイント

機能的で使いやすいシステムキッチン付きなので、お料理を楽しめます。快眠生活を送るには、使い勝手の良い8帖以上の寝室はいかがですか。ついつい後回しになる掃除。フローリングなら楽々です。駐車が2台可能でしたら、どんな状況にも瞬時に対応できるので安心ですね。夢のマイホームの購入を当社スタッフがサポートいたします。一戸建て情報を豊富に扱っているので、まずはお気軽にご連絡くださいませ。

ポイント

南向き 全居室収納 押入 寝室8帖以上 2面バルコニー

担当者のコメント

ついつい後回しになる掃除。フローリングなら楽々です。システムキッチン付きの物件です。子供が汚しても大丈夫、ご家族にお勧めの中古の戸建て物件で新しい暮らしを。出窓のスペースを使って可愛くコーディネートできます。中郡二宮町でなら、お客様のご希望の不動産情報が見つかります。まずはスカイガーデンまでご連絡ください。

この度は、数ある不動産会社の中からスカイガーデン株式会社の物件情報をご覧になって頂き誠に有難う御座います。
スカイガーデンには経験豊富なスタッフが揃っています!! また、自社施工によるリノベーション、リフォーム工事、住宅ローンや保険、不動産に関する税金法律その他各種手続きのことなど何でもお気軽にご相談ください。 お客様にいかに喜んでいただけるかを心がけています。 ●営業時間 午前9時00分~午後7時00分 (定休日:毎週火曜日、毎週水曜日) 営業時間内はお電話でのお問い合わせがスムーズにご案内できます。 お気軽にお電話ください。
スタッフ一同、心よりお待ちしておりますので宜しくお願い致します。

基本情報

販売戸数
-
総戸数
-
間取り / 詳細
4LDK
LDK 15.0帖 1室/和室 6.0帖 1室/洋室 6.0帖 2室/洋室 11.0帖 1室
向き
-
建物面積(坪数)
107.65㎡(32.56坪)
土地面積(坪数)
132.42㎡(40.05坪)
建ぺい率 /
容積率
60%/200%
築年月
1995年1月(築31年)
駐車場 /
月額料金
有 0円
土地権利
所有権
土地
(敷金 / 保証金)
- / -
建物構造
木造 / 2階建
傾斜地部分面積
-
路地状敷地
-
私道負担面積
-
セットバック
記載なし
高圧線下面積
-
施工会社
-
用途地域
第一種中高層住居専用
地目 / 地勢
宅地 / -
接道状況
一方(北東 公道)
国土法届出要否
不要
都市計画
市街化区域
総区画数 /
販売区画数
-/-
現況
居住中
その他
法令上の制限
-
取引態様
仲介
引渡し
相談
取引条件の
有効期限
2026年02月27日

設備条件

設備条件
  • フローリング / 出窓 / 公営水道 / 公共下水 / 2面バルコニー / 駐車2台可 / システムキッチン / カウンターキッチン / トイレ2ヶ所
設備(その他)
    -

その他

物件番号
90022503
管理コード
100131689031
建築確認番号
-
情報更新日
2026年02月15日
次回更新予定日
2026年02月27日
取扱会社
  • スカイガーデン株式会社
  • 神奈川県平塚市四之宮5丁目27-17 
  • TEL:0120-95-4548
  • 神奈川県知事 (2) 第29933号
  • 公益社団法人 神奈川県宅地建物取引業協会
    公益社団法人 首都圏不動産公正取引協議会会員
    公益財団法人 東日本不動産流通機構会員
    一般社団法人 住宅ローンに“困ったときの”あなたの街の相談窓口【神奈川西湘窓口】
備考
南面バルコニーが付いています。家族におすすめな4LDK。設備も充実しています。リビングの隣に和室がついています。ついつい後回しになる掃除。フローリングなら楽々です。お客様によって希望条件は異なります。当社ではお客様個人のご希望をお伺いし、それにマッチした不動産をご紹介致しております。まずはスタッフまでご希望をお申し付けください。

周辺施設

  • ファミリーマート 二宮釜野橋店の画像

    コンビニエンスストア

    ファミリーマート 二宮釜野橋店

    471m(6分)

  • 二宮町立山西小学校の画像

    小学校

    二宮町立山西小学校

    800m(10分)

  • セブンイレブン 二宮インター店の画像

    コンビニエンスストア

    セブンイレブン 二宮インター店

    864m(11分)

  • クリエイトSD二宮店の画像

    ドラッグストア

    クリエイトSD二宮店

    1182m(15分)

  • 二宮町立二宮西中学校の画像

    中学校

    二宮町立二宮西中学校

    1617m(21分)

支払いシミュレーション

月々の支払額
9.6
購入希望物件価格
万円
頭金
万円
金利
%
返済額(ボーナス1回分)
万円
返済期間

※ボーナスは自動で年2回分で計算されます。

近隣の物件

  1. 二宮町二宮 中古戸建

    中郡二宮町二宮

    4LDK (139.94㎡)

    1,998万円

  2. 二宮町山西 新築戸建 全2棟2号棟

    中郡二宮町山西

    4LDK (102.67㎡)

    3,980万円

  3. 二宮町山西 新築戸建 全2棟1号棟

    中郡二宮町山西

    4LDK (100.81㎡)

    4,280万円

  4. 中郡二宮町二宮 新築戸建 全7棟3号棟

    中郡二宮町二宮

    4LDK (99.31㎡)

    4,380万円

よく見られている物件

  1. 茅ヶ崎市菱沼1丁目 中古戸建

    茅ヶ崎市菱沼1丁目

    4LDK (116.75㎡)

    5,980万円

  2. 秦野市春日町 中古戸建

    秦野市春日町

    4SLDK (143.96㎡)

    2,480万円

  3. 秦野市戸川 中古戸建

    秦野市戸川

    4LDK (80.55㎡)

    1,280万円

  4. 平塚市菫平 中古戸建(へーベルハウス施工の築浅戸建)

    平塚市菫平

    9LDK (162.39㎡)

    4,290万円

二宮町山西 中古戸建

二宮町山西 中古戸建

1,480万円

-

4LDK(107.65㎡)

お気軽にお問い合わせください

LINEからお問い合わせ 無料お問い合わせ

スカイガーデン株式会社

0120-95-4548

9:00~19:00

(休:毎週火曜日/毎週水曜日)