【外観】天候により富士山を遠望 日照・開放感良好
- 建物面積
- 95.98㎡
- 築年月
- 2025年9月(新築)
-
TVモニタ付きインターホン
-
カウンターキッチン
-
独立洗面台
-
浴室乾燥機

外観
リビング
キッチン
洗面所
寝室- 販売戸数
- -
- 総戸数
- -
- 間取り / 詳細
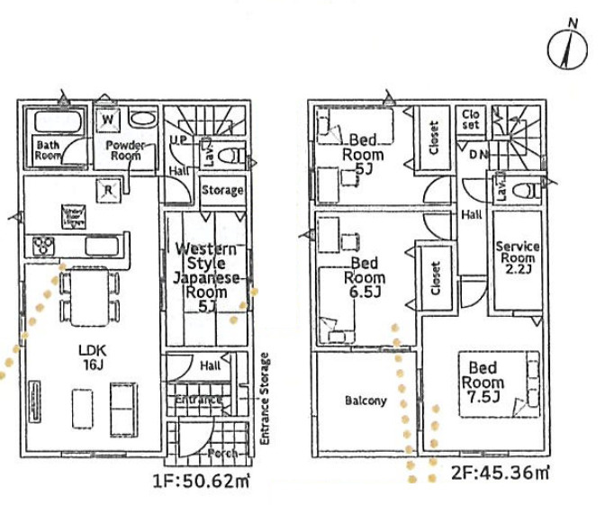
- 4LDK+S(納戸)
LDK 16.0帖 1室/和室 5.0帖 1室/洋室 5.0帖 1室/洋室 6.5帖 1室/洋室 7.5帖 1室/S 2.2帖 1室 - 向き
- 南
- 建物面積(坪数)
- 95.98㎡(29.03坪)
- 土地面積(坪数)
- 197.33㎡(59.69坪)
- 建ぺい率 /
容積率 - 60%/200%
- 築年月
- 2025年9月(新築)
- 土地権利
- 所有権
- 土地
(敷金 / 保証金) - - / -
- 建物構造
- 木造 / 2階建
- 傾斜地部分面積
- -
- 路地状敷地
- -
- 私道負担面積
- -
- セットバック
- 記載なし
- 高圧線下面積
- -
- 施工会社
- -
- 用途地域
- 第一種中高層住居専用
- 地目 / 地勢
- 宅地 / 平坦
- 接道状況
- 角地(南 6.0m 間口 5.8m)(西 公道 12.6m 間口 25.0m)
- 国土法届出要否
- 不要
- 都市計画
- 市街化区域
- 総区画数 /
販売区画数 - -/-
- 現況
- 完成済み
- その他
法令上の制限 - 景観法
- 取引態様
- 仲介
- 引渡し
- 相談
- 取引条件の
有効期限 - 2025年12月28日
- 設備条件
-
- 陽当り良好 / 閑静な住宅地 / 眺望良好 / フローリング / バルコニー / 都市ガス / 公営水道 / 公共下水 / 24時間換気システム / インナーバルコニー / システムキッチン / カウンターキッチン / 追焚機能浴室 / 浴室乾燥機 / 温水洗浄便座 / 洗面台 / トイレ2ヶ所 / 浴室1坪以上 / 独立洗面台 / 床下収納 / 収納豊富 / TVモニタ付インターホン / 複層ガラス
- 設備(その他)
-
-
-
- 物件番号
- 96852522
- 管理コード
- 100135403861
- 建築確認番号
- 第KBI-SGM25-10-2352号
- 情報更新日
- 2025年12月14日
- 次回更新予定日
- 2025年12月28日
- 取扱会社
-
- スカイガーデン株式会社 藤沢店
- 神奈川県藤沢市鵠沼神明1丁目5番16号 ケインズビル 3階
- TEL:0120-500-791
- 神奈川県知事 (2) 第29933号
- 加盟団体 公益社団法人 神奈川県宅地建物取引業協会
公益社団法人 首都圏不動産公正取引協議会会員
公益財団法人 東日本不動産流通機構会員
- 備考
- 建物面積95.98平米なので、使い勝手がいいです。ものが多くサービスルームが欲しい方にも嬉しい4SLDK。一生に一度のマイホーム探しは、ぜひ新築戸建てで。訪問者をカメラで確認できるTVインターホン設置済み。毎日の生活が充実できるよう、お客様の住まい探しをお手伝いいたします。こだわりのエリアや条件などございましたら、お気軽に当社へお問い合わせ下さい。
-
小学校
茅ヶ崎市立柳島小学校
350m(5分)
-
公園
湘南夢わくわく公園
514m(7分)
-
ドラッグストア
クリエイトSD茅ケ崎柳島店
534m(7分)
-
コンビニエンスストア
ファミリーマート 茅ケ崎中島店
576m(8分)
-
中学校
茅ヶ崎市立中島中学校
780m(10分)
-
郵便局
茅ヶ崎浜見平郵便局
911m(12分)
-
スーパー
たまや浜見平店
935m(12分)
-
スポーツ施設
柳島スポーツ公園
936m(12分)
-
ショッピングセンター
BRANCH茅ヶ崎
941m(12分)
-
その他
柳島(サーフスポット)
1155m(15分)
- 月々の支払額
- 9.6円
- 購入希望物件価格
-
万円
- 頭金
-
万円
- 金利
-
%
- 返済額(ボーナス1回分)
-
万円
- 返済期間
-
年
物件の特徴
セールスポイント
来訪者の顔が見えるTVインターホン付き。複層ガラスは室内の温度を逃がさず、冬場でも節約した生活を送ることができます。建物面積は95.98平米となっており広さも十分ではないでしょうか。当社に住まい探しをサポートさせて下さい。実績と知識が豊富なスタッフが在籍しているので、きっと住まい探しのお役に立てることでしょう。
ポイント
角地 洗面所独立 玄関ポーチ TVモニタ付インターホン システムキッチン
担当者のコメント
パノラマ画像
基本情報
設備条件
その他
周辺施設
支払いシミュレーション
※ボーナスは自動で年2回分で計算されます。
近隣の物件
茅ヶ崎市柳島第11 新築戸建 全8棟5号棟
4,480万円
-
4LDK+S(納戸)(95.98㎡)
物件は、住宅性能評価制度において第三者機関の評価員から住宅性能を(設計、建設)取得しています。 火災保険の地震保険については最大50%割引となる物件です。 当社へお問合せを頂いたお客様には担当者が責任を持ってご説明からさせて頂きますのでお気軽にお問合せ下さい。 スカイガーデンには経験豊富なスタッフが揃っています!! また、自社施工によるリノベーションやリフォーム工事、住宅ローンや保険、不動産に関する税金法律その他各種手続きのことなど何でもお気軽にご相談ください。 お客様にいかに喜んでいただけるかを心がけています。 ●営業時間 午前9時00分~午後7時00分 (定休日:毎週火曜日、毎週水曜日) 営業時間内はお電話でのお問い合わせがスムーズにご案内できます。 お気軽にお電話ください。