鎌倉岩瀬ハイツ

4,690万円

神奈川県鎌倉市岩瀬1丁目

東海道本線「大船」駅徒歩8分

湘南モノレール「大船」駅徒歩11分

価格
4,690万円
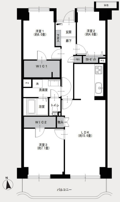
間取り/面積
3LDK/78.10㎡
所在地
神奈川県鎌倉市岩瀬1丁目
築年
1984年8月(築41年)
駐車
-
交通

東海道本線大船」駅 徒歩8分

湘南モノレール大船」駅 徒歩11分

鎌倉岩瀬ハイツの基本情報

物件名
鎌倉岩瀬ハイツ
価格
4,690万円
築年月
1984年8月(築41年)
総戸数
76戸
所在地
神奈川県鎌倉市岩瀬1丁目
交通

東海道本線大船」駅 徒歩8分

湘南モノレール大船」駅 徒歩11分

鎌倉岩瀬ハイツの詳細情報

設備条件
  • エレベーター
設備(その他)
    -
駐車場/月額
-/-
土地権利
所有権
国土法届出
不要
用途地域
第一種住居
戸数
76戸 / -
管理形態
管理会社に一部委託
管理員の勤務形態
-
管理会社
-
取引態様
仲介
引渡し
相談
備考
新着情報:鎌倉岩瀬ハイツの空室情報ならコチラ。こちらの物件はスーパー「イトーヨーカドー 大船店」が382m以内にあります。駅徒歩8分の物件です。多くの方に好評な、清潔感のある室内が魅力の中古マンションです。不動産情報のことならスカイガーデンにお任せ下さい。当社は鎌倉市エリアの物件情報を多数取り扱っております。ご要望やご不明な点など、ご連絡お待ちしております。

鎌倉岩瀬ハイツのコメント(おすすめポイント)

歩いて382mの場所に、イトーヨーカドー 大船店があります。綺麗に整備された中古マンションで清潔感を感じます。駅から徒歩8分の場所に位置する物件です。鎌倉市の東海道本線大船周辺にある物件情報なら、スカイガーデンまでお気軽にお尋ねください。お客様のご希望に合った物件が見つかります。

鎌倉岩瀬ハイツで募集中の物件

  1. 1階

    23.62坪 (78.10㎡)

    4,690万円(198.56万円/坪)

周辺施設

  • グローバルキッズ大船園の画像

    保育園

    グローバルキッズ大船園

    39m(1分)

  • イトーヨーカドー 大船店の画像

    スーパー

    イトーヨーカドー 大船店

    382m(5分)

  • 大船中央病院の画像

    総合病院

    大船中央病院

    585m(8分)

  • ひがし幼稚園の画像

    幼稚園

    ひがし幼稚園

    590m(8分)

  • 鎌倉市立大船小学校の画像

    小学校

    鎌倉市立大船小学校

    685m(9分)

  • セブンイレブン 鎌倉岩瀬店の画像

    コンビニエンスストア

    セブンイレブン 鎌倉岩瀬店

    694m(9分)

  • ウエルシア 鎌倉岩瀬店の画像

    ドラッグストア

    ウエルシア 鎌倉岩瀬店

    741m(10分)

  • 鎌倉大船三郵便局の画像

    郵便局

    鎌倉大船三郵便局

    1000m(13分)

  • 鎌倉市立岩瀬中学校の画像

    中学校

    鎌倉市立岩瀬中学校

    1689m(22分)

近隣の物件

  1. 鎌倉市岩瀬1丁目

    3LDK (80.57㎡)

    9,490万円

  2. 鎌倉市植木

    4SLDK (121.86㎡)

    3,690万円

  3. 鎌倉市玉縄2丁目

    3LDK (68.98㎡)

    2,890万円

  4. 鎌倉市岡本2丁目

    2LDK (61.30㎡)

    3,190万円

鎌倉岩瀬ハイツ

お気軽にお問い合わせください

無料お問い合わせ

スカイガーデン株式会社 藤沢店

0120-500-791

9:00~19:00

(休:毎週火曜・水曜)