鎌倉市台2期 新築戸建 全2棟2号棟

5,299万円

神奈川県鎌倉市4丁目

湘南モノレール「富士見町」駅徒歩9分

東海道本線「大船」駅徒歩22分

価格
5,299万円
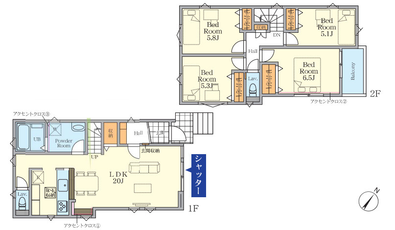
間取り/建物面積
4LDK/98.64㎡
所在地
神奈川県鎌倉市4丁目
築年
2025年8月(新築)
駐車
交通

湘南モノレール富士見町」駅 徒歩9分

東海道本線大船」駅 徒歩22分

鎌倉市台2期 新築戸建 全2棟2号棟の基本情報

物件名
鎌倉市台2期 新築戸建 全2棟2号棟
価格
5,299万円
建物面積
98.64㎡
土地面積
32.02坪(105.88㎡)
築年月
2025年8月(新築)
総戸数
-
所在地
神奈川県鎌倉市4丁目
交通

湘南モノレール富士見町」駅 徒歩9分

東海道本線大船」駅 徒歩22分

鎌倉市台2期 新築戸建 全2棟2号棟の詳細情報

設備条件
  • 閑静な住宅地
  • 駐車2台可
設備(その他)
    -
駐車場/月額
有/0円
土地権利
所有権
国土法届出
不要
用途地域
第一種中高層住居専用
取引態様
仲介
引渡し
相談
備考
「鎌倉市台2期 新築戸建 全2棟2号棟」の物件情報をお探しならお気軽にお問い合わせ下さい。ローソン 鎌倉台四丁目店が500mにある物件です。駅から物件まで徒歩9分です。利便性の高い設備も充実した、高ニーズな令和7年8月築の物件です。鎌倉市にある物件を実際に見学したい方は、スカイガーデンまでご連絡ください。内覧予約を承っております。

鎌倉市台2期 新築戸建 全2棟2号棟のコメント(おすすめポイント)

ローソン 鎌倉台四丁目店が500mにある物件です。多くの方に好評の、2025年8月築の物件です。駅まで徒歩9分の物件です。新築にこだわりをもつ方には、こちらの新築物件はいかがでしょうか。鎌倉市の物件検索をするなら、物件数が豊富な湘南モノレール富士見町周辺でお探し下さい。お客様のご要望を0120-500-791かotoiawase-fujisawa@sky-garden.co.jpにご連絡下さい。

鎌倉市台2期 新築戸建 全2棟2号棟で募集中の物件

  1. 29.83坪 (98.64㎡)

    5,299万円(177.64万円/坪)

周辺施設

  • ローソン 鎌倉台四丁目店の画像

    コンビニエンスストア

    ローソン 鎌倉台四丁目店

    500m(7分)

  • FUJI大船店の画像

    スーパー

    FUJI大船店

    650m(9分)

  • 鎌倉台郵便局の画像

    郵便局

    鎌倉台郵便局

    733m(10分)

  • 鎌倉市立山崎保育園の画像

    保育園

    鎌倉市立山崎保育園

    757m(10分)

  • YAMAKA(ヤマカ) 富士見町店の画像

    スーパー

    YAMAKA(ヤマカ) 富士見町店

    772m(10分)

  • 鎌倉市立山崎小学校の画像

    小学校

    鎌倉市立山崎小学校

    800m(10分)

  • 鎌倉市立大船中学校の画像

    中学校

    鎌倉市立大船中学校

    1518m(19分)

近隣の物件

  1. 鎌倉市津

    7LDK (273.41㎡)

    12,600万円

  2. 鎌倉市今泉台7丁目

    4LDK (98.82㎡)

    4,880万円

  3. 鎌倉市関谷

    4LDK (93.14㎡)

    3,680万円

  4. 鎌倉市雪ノ下1丁目

    4SLDK (228.18㎡)

    26,800万円

鎌倉市台2期 新築戸建 全2棟2号棟

お気軽にお問い合わせください

無料お問い合わせ

スカイガーデン株式会社 藤沢店

0120-500-791

9:00~19:00

(休:毎週火曜・水曜)