茅ヶ崎市柳島第11 新築戸建 全8棟3号棟

3,580万円

神奈川県茅ヶ崎市柳島2丁目

東海道本線「茅ケ崎」駅バス12分「浜見平団地」停歩5分

価格
3,580万円
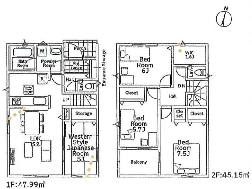
間取り/建物面積
4LDK/93.14㎡
所在地
神奈川県茅ヶ崎市柳島2丁目
築年
2025年9月(予定)
駐車
交通

東海道本線茅ケ崎」駅 バス12分 「浜見平団地」 停歩5分

茅ヶ崎市柳島第11 新築戸建 全8棟3号棟の基本情報

物件名
茅ヶ崎市柳島第11 新築戸建 全8棟3号棟
価格
3,580万円
建物面積
93.14㎡
土地面積
37.85坪(125.13㎡)
築年月
2025年9月(予定)
総戸数
-
所在地
神奈川県茅ヶ崎市柳島2丁目
交通

東海道本線茅ケ崎」駅 バス12分 「浜見平団地」 停歩5分

茅ヶ崎市柳島第11 新築戸建 全8棟3号棟の詳細情報

設備条件
  • 駐車2台可
設備(その他)
    -
駐車場/月額
有/0円
土地権利
所有権
国土法届出
不要
用途地域
第一種中高層住居専用
取引態様
仲介
引渡し
相談
備考
茅ヶ崎市柳島第11 新築戸建 全8棟3号棟:東海道本線茅ケ崎駅にも近くて便利。前面道路6m以上の物件です。一生に一度のマイホーム探しは、ぜひ新築戸建てで。茅ヶ崎市には多種多様な一戸建てがございますので、マイホームの購入をお考えなら、ぜひ当社までご連絡ください。お待ちしております。

茅ヶ崎市柳島第11 新築戸建 全8棟3号棟のコメント(おすすめポイント)

「茅ヶ崎市柳島第11 新築戸建 全8棟3号棟」のここがイチオシ。コチラの物件は、新築の戸建て物件で設備も充実しています。当社では、東海道本線茅ケ崎付近の一戸建て探しをサポート致します。マイホームをお求めなら、まずは<otoiawase-fujisawa@sky-garden.co.jp>からお問い合わせをお待ちしております。

茅ヶ崎市柳島第11 新築戸建 全8棟3号棟で募集中の物件

  1. 28.17坪 (93.14㎡)

    3,580万円(94.58万円/坪)

周辺施設

  • 茅ヶ崎市立柳島小学校の画像

    小学校

    茅ヶ崎市立柳島小学校

    350m(5分)

  • 湘南夢わくわく公園の画像

    公園

    湘南夢わくわく公園

    514m(7分)

  • クリエイトSD茅ケ崎柳島店の画像

    ドラッグストア

    クリエイトSD茅ケ崎柳島店

    534m(7分)

  • ファミリーマート 茅ケ崎中島店の画像

    コンビニエンスストア

    ファミリーマート 茅ケ崎中島店

    576m(8分)

  • 茅ヶ崎市立中島中学校の画像

    中学校

    茅ヶ崎市立中島中学校

    780m(10分)

  • 茅ヶ崎浜見平郵便局の画像

    郵便局

    茅ヶ崎浜見平郵便局

    911m(12分)

  • たまや浜見平店の画像

    スーパー

    たまや浜見平店

    935m(12分)

  • 柳島スポーツ公園の画像

    スポーツ施設

    柳島スポーツ公園

    936m(12分)

  • BRANCH茅ヶ崎の画像

    ショッピングセンター

    BRANCH茅ヶ崎

    941m(12分)

  • 柳島(サーフスポット)の画像

    その他

    柳島(サーフスポット)

    1155m(15分)

近隣の物件

  1. 茅ヶ崎市菱沼1丁目

    4LDK (116.75㎡)

    5,980万円

  2. 茅ヶ崎市香川

    3LDK (94.80㎡)

    3,880万円

  3. 茅ヶ崎市松林2丁目

    4LDK (105.99㎡)

    5,680万円

  4. 茅ヶ崎市松林2丁目

    4LDK (105.58㎡)

    5,480万円

茅ヶ崎市柳島第11 新築戸建 全8棟3号棟

お気軽にお問い合わせください

無料お問い合わせ

スカイガーデン株式会社 藤沢店

0120-500-791

9:00~19:00

(休:毎週火曜・水曜)