厚木市林3丁目 新築戸建

4,180万円

神奈川県厚木市3丁目

小田急小田原線「本厚木」駅バス15分「穴口橋」停歩2分

価格
4,180万円
間取り/建物面積
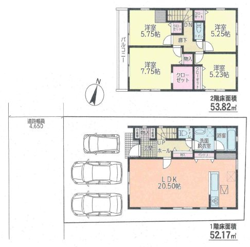
4LDK/105.99㎡
所在地
神奈川県厚木市3丁目
築年
2025年10月(新築)
駐車
交通

小田急小田原線本厚木」駅 バス15分 「穴口橋」 停歩2分

厚木市林3丁目 新築戸建の基本情報

物件名
厚木市林3丁目 新築戸建
価格
4,180万円
建物面積
105.99㎡
土地面積
35.02坪(115.78㎡)
築年月
2025年10月(新築)
総戸数
-
所在地
神奈川県厚木市3丁目
交通

小田急小田原線本厚木」駅 バス15分 「穴口橋」 停歩2分

厚木市林3丁目 新築戸建の詳細情報

設備条件
  • 駐車3台可
設備(その他)
    -
駐車場/月額
有/0円
土地権利
所有権
国土法届出
不要
用途地域
-
取引態様
仲介
引渡し
相談
備考
内外装共に綺麗な新築戸建ての物件はいかがでしょうか。令和7年10月完成の新築物件です。お客様のご希望条件をお聞かせ下さい。スカイガーデンは、厚木市の物件探しのサポートを致します。ご依頼をお待ちしております。

厚木市林3丁目 新築戸建のコメント(おすすめポイント)

ぜひ一度見ていただきたい、「厚木市林3丁目 新築戸建」です。こだわりの設備が整った新築物件です。2025年10月築の物件となっており、設備も充実しています。こちらは清潔感のある新築戸建て物件です。厚木市にて売買戸建てを探すなら、スカイガーデンがお手伝い致します。ご希望の条件をお申し付けください。

厚木市林3丁目 新築戸建で募集中の物件

  1. 32.06坪 (105.99㎡)

    4,180万円(130.38万円/坪)

周辺施設

  • ローソン 厚木林一丁目店の画像

    コンビニエンスストア

    ローソン 厚木林一丁目店

    603m(8分)

  • そうてつローゼン厚木林店の画像

    スーパー

    そうてつローゼン厚木林店

    659m(9分)

  • クリエイトSD厚木林北店の画像

    ドラッグストア

    クリエイトSD厚木林北店

    675m(9分)

  • 厚木緑ヶ丘郵便局の画像

    郵便局

    厚木緑ヶ丘郵便局

    944m(12分)

近隣の物件

  1. 厚木市森の里4丁目

    4SLDK (117.58㎡)

    2,380万円

  2. 厚木市岡田2丁目

    3LDK (101.02㎡)

    3,980万円

  3. 厚木市緑ケ丘4丁目

    4LDK (111.75㎡)

    3,580万円

  4. 厚木市温水西2丁目

    4SLDK (191.16㎡)

    3,780万円

よく見られている物件

  1. 秦野市春日町

    4SLDK (143.96㎡)

    2,480万円

  2. 茅ヶ崎市菱沼1丁目

    4LDK (116.75㎡)

    5,980万円

  3. 秦野市戸川

    4LDK (80.55㎡)

    1,280万円

  4. 平塚市菫平

    9LDK (162.39㎡)

    4,290万円

厚木市林3丁目 新築戸建

お気軽にお問い合わせください

LINEからお問い合わせ 無料お問い合わせ

スカイガーデン株式会社

0120-95-4548

9:00~19:00

(休:毎週火曜日/毎週水曜日)