藤沢市花の木 中古戸建

10月31日 値下げ

5,780万円

神奈川県藤沢市花の木

小田急江ノ島線「藤沢本町」駅徒歩8分

価格
5,780万円
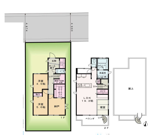
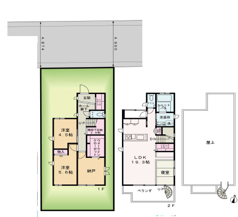
間取り
3LDK+S(納戸)
土地面積
98.02㎡
所在地
神奈川県藤沢市花の木
交通

小田急江ノ島線藤沢本町」駅 徒歩8分

建物面積
97.80㎡
築年月
2018年9月(築7年)

物件の特徴

  • バストイレ別

  • 室内洗濯機置場

  • 独立洗面台

セールスポイント

小田急江ノ島線「藤沢本町」駅から徒歩8分 夏はプール、普段は仲間とバーべキューが楽しめる水栓付ルーフバルコニー ウォークインクローゼット、シューズクローク、階段下収納と片付けラクラクです スーパーも近くにあり生活便利です 

ポイント

洗面所に窓 バルコニー ウォークインクロゼット 浴室に窓 洗面所にドア

担当者のコメント

新生活を失敗せず、スタートさせたいならこちらの「藤沢市花の木 中古戸建」はいかがでしょうか。洗面台付きで朝の身支度も困りません。値段がお手ごろな中古戸建てはいかがでしょうか。徒歩8分圏内に駅のある物件です。スカイガーデンでは藤沢市の不動産を豊富にご用意しております。お引っ越しを検討しているなら、まずはお問い合わせください。

基本情報

販売戸数
-
総戸数
-
間取り / 詳細
3LDK+S(納戸)
LDK 19.3帖 1室/和室 1.0帖/洋室 4.5帖 1室/洋室 5.6帖 1室/S
向き
建物面積(坪数)
97.80㎡(29.58坪)
土地面積(坪数)
98.02㎡(29.65坪)
建ぺい率 /
容積率
60%/200%
築年月
2018年9月(築7年)
駐車場 /
月額料金
有 0円
土地権利
所有権
土地
(敷金 / 保証金)
- / -
建物構造
軽量鉄骨 / 2階建
傾斜地部分面積
-
路地状敷地
-
私道負担面積
-
セットバック
高圧線下面積
-
施工会社
-
用途地域
第一種住居
地目 / 地勢
宅地 / -
接道状況
-(北西 公道 4.7m 間口 6.7m)
国土法届出要否
不要
都市計画
市街化区域
総区画数 /
販売区画数
-/-
現況
居住中
その他
法令上の制限
-
取引態様
仲介
引渡し
相談
取引条件の
有効期限
2026年01月29日

設備条件

設備条件
  • 陽当り良好 / 室内洗濯機置場 / フローリング / バルコニー / 都市ガス / 公営水道 / 公共下水 / システムキッチン / バス・トイレ別 / 洗面台 / 独立洗面台 / ウォークインクロゼット
設備(その他)
    -

その他

物件番号
91000426
管理コード
100132120271
建築確認番号
-
情報更新日
2026年01月15日
次回更新予定日
2026年01月29日
取扱会社
  • スカイガーデン株式会社 藤沢店
  • 神奈川県藤沢市鵠沼神明1丁目5番16号 ケインズビル 3階
  • TEL:0120-500-791
  • 神奈川県知事 (2) 第29933号
  • 加盟団体 公益社団法人 神奈川県宅地建物取引業協会
    公益社団法人 首都圏不動産公正取引協議会会員
    公益財団法人 東日本不動産流通機構会員
備考
「藤沢市花の木 中古戸建」:藤沢市エリアの新居にピッタリ。建物面積が97.8㎡でスペースが十分のファミリーにもおすすめの物件です。リビングでくつろげる3SLDKの物件です。初めて藤沢市より戸建て探しをされる方も、地域に特化した当社にお任せ下さい。0120-500-791かotoiawase-fujisawa@sky-garden.co.jpまでご連絡をお願いします。

周辺施設

  • セブンイレブン藤沢4丁目店の画像

    コンビニエンスストア

    セブンイレブン藤沢4丁目店

    753m(10分)

  • ロイヤルホスト藤沢本町店の画像

    ファミリーレストラン

    ロイヤルホスト藤沢本町店

    861m(11分)

  • マクドナルド藤沢本町店の画像

    ファーストフード

    マクドナルド藤沢本町店

    894m(12分)

  • FUJI善行店の画像

    スーパー

    FUJI善行店

    2081m(27分)

  • 湘南モールFILLの画像

    ショッピングセンター

    湘南モールFILL

    2445m(31分)

  • MrMax湘南藤沢ショッピングセンターの画像

    ショッピングセンター

    MrMax湘南藤沢ショッピングセンター

    2454m(31分)

支払いシミュレーション

月々の支払額
9.6
購入希望物件価格
万円
頭金
万円
金利
%
返済額(ボーナス1回分)
万円
返済期間

※ボーナスは自動で年2回分で計算されます。

近隣の物件

  1. 藤沢市石川6丁目 新築戸建 全8棟2号棟

    藤沢市石川6丁目

    4LDK (101.02㎡)

    5,180万円

  2. 藤沢市辻堂東海岸2丁目 新築戸建 全2棟1号棟

    藤沢市辻堂東海岸2丁目

    3LDK (86.52㎡)

    6,280万円

  3. 藤沢市辻堂東海岸2丁目 新築戸建 全2棟2号棟

    藤沢市辻堂東海岸2丁目

    3LDK (84.87㎡)

    5,980万円

  4. 藤沢市鵠沼海岸6丁目 中古戸建

    藤沢市鵠沼海岸6丁目

    4LDK (96.46㎡)

    5,299万円

藤沢市花の木 中古戸建

藤沢市花の木 中古戸建

5,780万円

-

3LDK+S(納戸)(97.80㎡)

お気軽にお問い合わせください

無料お問い合わせ

スカイガーデン株式会社 藤沢店

0120-500-791

9:00~19:00

(休:毎週火曜・水曜)