藤沢市花の木 中古戸建

5,780万円

神奈川県藤沢市花の木

小田急江ノ島線「藤沢本町」駅徒歩8分

価格
5,780万円
間取り/建物面積
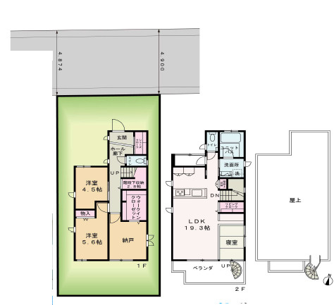
3LDK+S(納戸)/97.80㎡
所在地
神奈川県藤沢市花の木
築年
2018年9月(築7年)
駐車
交通

小田急江ノ島線藤沢本町」駅 徒歩8分

藤沢市花の木 中古戸建の基本情報

物件名
藤沢市花の木 中古戸建
価格
5,780万円
建物面積
97.80㎡
土地面積
29.65坪(98.02㎡)
築年月
2018年9月(築7年)
総戸数
-
所在地
神奈川県藤沢市花の木
交通

小田急江ノ島線藤沢本町」駅 徒歩8分

藤沢市花の木 中古戸建の詳細情報

設備条件
設備(その他)
    -
駐車場/月額
有/0円
土地権利
所有権
国土法届出
不要
用途地域
第一種住居
取引態様
仲介
引渡し
相談
備考
木の温もりも感じることのできる、2018年9月築の物件となります。中古の戸建て物件は幅広い年齢層の方からニーズがあります。駅徒歩8分の物件です。藤沢市にある小田急江ノ島線藤沢本町周辺の物件の事なら、種類を豊富に取り揃えているスカイガーデンにお任せ下さい。otoiawase-fujisawa@sky-garden.co.jpまでお問い合わせをお待ちしております。

藤沢市花の木 中古戸建のコメント(おすすめポイント)

藤沢市周辺にある物件をお求めの方は「藤沢市花の木 中古戸建」はいかがでしょうか。綺麗な室内の中古戸建て物件で素敵な日々をおくりませんか。徒歩8分圏内に立地する物件です。築6年の物件です。スカイガーデンで売買一戸建てを探すなら、まずは藤沢市で検索しましょう。お気軽に、0120-500-791までご連絡下さい。

藤沢市花の木 中古戸建で募集中の物件

  1. 29.58坪 (97.80㎡)

    5,780万円(195.4万円/坪)

周辺施設

  • セブンイレブン藤沢4丁目店の画像

    コンビニエンスストア

    セブンイレブン藤沢4丁目店

    753m(10分)

  • ロイヤルホスト藤沢本町店の画像

    ファミリーレストラン

    ロイヤルホスト藤沢本町店

    861m(11分)

  • マクドナルド藤沢本町店の画像

    ファーストフード

    マクドナルド藤沢本町店

    894m(12分)

  • FUJI善行店の画像

    スーパー

    FUJI善行店

    2081m(27分)

  • 湘南モールFILLの画像

    ショッピングセンター

    湘南モールFILL

    2445m(31分)

  • MrMax湘南藤沢ショッピングセンターの画像

    ショッピングセンター

    MrMax湘南藤沢ショッピングセンター

    2454m(31分)

近隣の物件

  1. 藤沢市鵠沼海岸7丁目

    3LDK (89.63㎡)

    6,998万円

  2. 藤沢市鵠沼海岸6丁目

    4LDK (97.29㎡)

    6,990万円

  3. 藤沢市片瀬1丁目

    4LDK (118.40㎡)

    5,599万円

  4. 藤沢市鵠沼海岸6丁目

    4LDK (96.67㎡)

    7,190万円

藤沢市花の木 中古戸建

お気軽にお問い合わせください

無料お問い合わせ

スカイガーデン株式会社 藤沢店

0120-500-791

9:00~19:00

(休:毎週火曜・水曜)