【外観】きれいな外観です 内覧ご予約受付中
- 建物面積
- 112.61㎡
- 築年月
- 2025年10月(新築)
-
TVモニタ付きインターホン
-
カウンターキッチン
-
独立洗面台
-
浴室乾燥機

外観
キッチン
リビング
洗面所
寝室- 販売戸数
- -
- 総戸数
- -
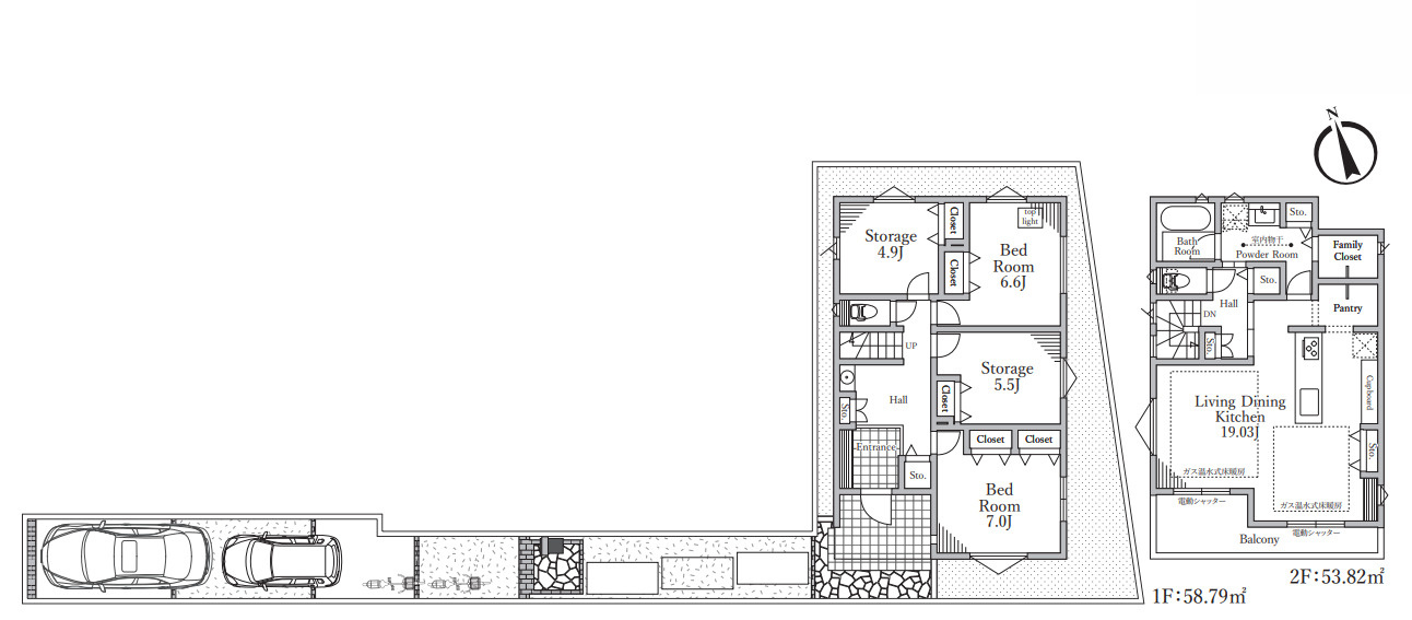
- 間取り / 詳細
- 2LDK+2S(納戸)
S 4.9帖 1室/S 5.5帖 1室/洋室 6.6帖/洋室 7.0帖 1室/洋室 19.0帖 1室 - 向き
- -
- 建物面積(坪数)
- 112.61㎡(34.06坪)
- 土地面積(坪数)
- 152.48㎡(46.12坪)
- 建ぺい率 /
容積率 - 60%/150%
- 築年月
- 2025年10月(新築)
- 駐車場 /
月額料金 - 有 0円
- 土地権利
- 所有権
- 土地
(敷金 / 保証金) - - / -
- 建物構造
- 木造 / 2階建
- 傾斜地部分面積
- -
- 路地状敷地
- -
- 私道負担面積
- -
- セットバック
- 無
- 高圧線下面積
- -
- 施工会社
- -
- 用途地域
- 第一種中高層住居専用
- 地目 / 地勢
- 宅地 / 平坦
- 接道状況
- 一方(西 公道 4.5m)
- 国土法届出要否
- 不要
- 都市計画
- 市街化区域
- 総区画数 /
販売区画数 - -/-
- 現況
- 完成済み
- その他
法令上の制限 - -
- 取引態様
- 仲介
- 引渡し
- 相談
- 取引条件の
有効期限 - 2026年01月29日
- 設備条件
-
- 閑静な住宅地 / バルコニー / 都市ガス / 公営水道 / 公共下水 / 24時間換気システム / 駐車2台可 / 食器洗い乾燥機 / システムキッチン / カウンターキッチン / 追焚機能浴室 / 浴室乾燥機 / 温水洗浄便座 / 洗面台 / トイレ2ヶ所 / 浴室1坪以上 / 独立洗面台 / 床暖房 / 収納豊富 / TVモニタ付インターホン / 宅配ボックス / 複層ガラス
- 設備(その他)
-
-
-
- 物件番号
- 98597030
- 管理コード
- 100136190256
- 建築確認番号
- 第KBI-TKN25-10-0516号
- 情報更新日
- 2026年01月15日
- 次回更新予定日
- 2026年01月29日
- 取扱会社
-
- スカイガーデン株式会社 藤沢店
- 神奈川県藤沢市鵠沼神明1丁目5番16号 ケインズビル 3階
- TEL:0120-500-791
- 神奈川県知事 (2) 第29933号
- 加盟団体 公益社団法人 神奈川県宅地建物取引業協会
公益社団法人 首都圏不動産公正取引協議会会員
公益財団法人 東日本不動産流通機構会員
- 備考
- 床暖房が付いているので、エアコンのようにシーズン毎の掃除が不要になりお手入れが簡単になります。一生に一度のマイホーム探しは、ぜひ新築戸建てで。お住まいにはこだわりたい部分がたくさんありますよね。当社では、豊富な不動産情報をお客様へ紹介いたしますので、お気に入りの不動産がきっと見つかります。
-
郵便局
鎌倉手広郵便局
576m(8分)
-
ドラッグストア
クリエイトSD鎌倉西手広店
649m(9分)
-
コンビニエンスストア
セブンイレブン 鎌倉手広西店
649m(9分)
-
中学校
鎌倉市立手広中学校
828m(11分)
-
小学校
鎌倉市立西鎌倉小学校
921m(12分)
-
スーパー
たまや鎌倉手広店
957m(12分)
-
内科
湘南記念病院
1078m(14分)
- 月々の支払額
- 9.6円
- 購入希望物件価格
-
万円
- 頭金
-
万円
- 金利
-
%
- 返済額(ボーナス1回分)
-
万円
- 返済期間
-
年
物件の特徴
セールスポイント
新築ならではの「新しさ」がとても魅力です。床暖房が付いているのでエアコンやファンヒーターによる空気や肌の乾燥を防げます。お手入れが簡単な、24時間換気システムが付いています。浴室乾燥機のあるお風呂場は洗濯物を干すときにも便利です。毎日の生活が充実できるよう、お客様の住まい探しをお手伝いいたします。こだわりのエリアや条件などございましたら、お気軽に当社へお問い合わせ下さい。
ポイント
南面リビング 温水洗浄便座 全居室洋室 クロゼット 2階リビング
担当者のコメント
パノラマ画像
基本情報
設備条件
その他
周辺施設
支払いシミュレーション
※ボーナスは自動で年2回分で計算されます。
近隣の物件
鎌倉市手広 新築戸建 全2棟2号棟
5,680万円
-
2LDK+2S(納戸)(112.61㎡)
この度は、数ある不動産会社の中からスカイガーデン株式会社の物件情報をご覧になって頂き誠に有難う御座います。 スカイガーデンには経験豊富なスタッフが揃っています!! また、自社施工によるリノベーション、リフォーム工事、住宅ローンや保険、不動産に関する税金法律その他各種手続きのことなど何でもお気軽にご相談ください。 お客様にいかに喜んでいただけるかを心がけています。
お住まい探しに関することは、スカイガーデン藤沢店までお問合わせください。