- 建物面積
- 95.58㎡
- 築年月
- 2025年9月(新築)
物件の特徴
-
TVモニタ付きインターホン
-
カウンターキッチン
-
独立洗面台
-
浴室乾燥機
セールスポイント
茅ヶ崎市エリアでの住まいなら、住み心地も快適な「茅ヶ崎市柳島第11 新築戸建 全8棟7号棟」はいかがでしょうか。通学区域内の小学校は茅ヶ崎市立柳島小学校で徒歩5分です。新天地で新生活を始めるのであれば、豊富な不動産情報をご用意したスカイガーデンまでお問い合わせください。きっと素敵なお住まいが見つかります。
ポイント
人感照明センサー 温水洗浄便座 クロゼット3ヶ所 小学校 徒歩10分以内 南面リビング
担当者のコメント
パノラマ画像

外観
リビング
洗面所
寝室
キッチン
基本情報
- 販売戸数
- -
- 総戸数
- -
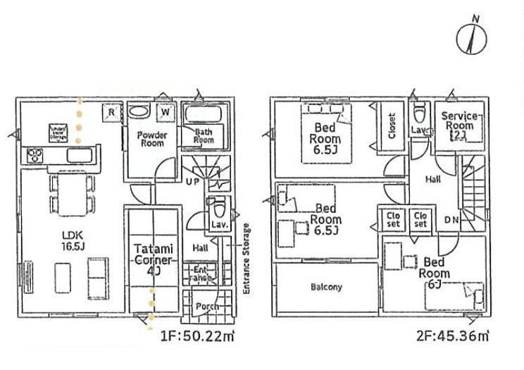
- 間取り / 詳細
- 3LDK+S(納戸)
LDK 16.5帖 1室/洋室 6.5帖 2室/洋室 6.0帖 1室/S 2.0帖 1室/その他 4.0帖 1室
- 向き
- -
- 建物面積(坪数)
- 95.58㎡(28.91坪)
- 土地面積(坪数)
- 128.94㎡(39.00坪)
- 建ぺい率 /
容積率 - 60%/200%
- 築年月
- 2025年9月(新築)
- 駐車場 /
月額料金 - 有 0円
- 土地権利
- 所有権
- 土地
(敷金 / 保証金) - - / -
- 建物構造
- 木造 / 2階建
- 傾斜地部分面積
- -
- 路地状敷地
- -
- 私道負担面積
- -
- セットバック
- 記載なし
- 高圧線下面積
- -
- 施工会社
- -
- 用途地域
- 第一種中高層住居専用
- 地目 / 地勢
- 宅地 / 平坦
- 接道状況
- 一方(南 6.0m 間口 11.4m)
- 国土法届出要否
- 不要
- 都市計画
- 市街化区域
- 総区画数 /
販売区画数 - -/-
- 現況
- 完成済み
- その他
法令上の制限 - -
- 取引態様
- 仲介
- 引渡し
- 相談
- 取引条件の
有効期限 - 2025年12月28日
設備条件
- 設備条件
-
- 陽当り良好 / 閑静な住宅地 / フローリング / バルコニー / 都市ガス / 公営水道 / 公共下水 / インナーバルコニー / 駐車2台可 / システムキッチン / カウンターキッチン / 追焚機能浴室 / 浴室乾燥機 / 温水洗浄便座 / 洗面台 / トイレ2ヶ所 / 独立洗面台 / 床下収納 / 収納豊富 / TVモニタ付インターホン / 複層ガラス
- 設備(その他)
-
-
-
その他
- 物件番号
- 96854377
- 管理コード
- 100135403861
- 建築確認番号
- 第KBI-SGM25-10-2354号
- 情報更新日
- 2025年12月14日
- 次回更新予定日
- 2025年12月28日
- 取扱会社
-
- スカイガーデン株式会社 藤沢店
- 神奈川県藤沢市鵠沼神明1丁目5番16号 ケインズビル 3階
- TEL:0120-500-791
- 神奈川県知事 (2) 第29933号
- 加盟団体 公益社団法人 神奈川県宅地建物取引業協会
公益社団法人 首都圏不動産公正取引協議会会員
公益財団法人 東日本不動産流通機構会員
- 備考
- 東海道本線茅ケ崎駅周辺への引っ越しをお考えなら「茅ヶ崎市柳島第11 新築戸建 全8棟7号棟」。ファミリー向けのポイント、茅ヶ崎市立柳島小学校が徒歩5分のところにあります。システムキッチン付きの物件です。不動産をお探しなら、当社にお任せください。当社は数多くの不動産情報を取り扱っております。ぜひ当社での不動産探しをご検討ください。
周辺施設
-
小学校
茅ヶ崎市立柳島小学校
350m(5分)
-
公園
湘南夢わくわく公園
514m(7分)
-
ドラッグストア
クリエイトSD茅ケ崎柳島店
534m(7分)
-
コンビニエンスストア
ファミリーマート 茅ケ崎中島店
576m(8分)
-
中学校
茅ヶ崎市立中島中学校
780m(10分)
-
郵便局
茅ヶ崎浜見平郵便局
911m(12分)
-
スーパー
たまや浜見平店
935m(12分)
-
スポーツ施設
柳島スポーツ公園
936m(12分)
-
ショッピングセンター
BRANCH茅ヶ崎
941m(12分)
-
その他
柳島(サーフスポット)
1155m(15分)
支払いシミュレーション
- 月々の支払額
- 9.6円
- 購入希望物件価格
-
万円
- 頭金
-
万円
- 金利
-
%
- 返済額(ボーナス1回分)
-
万円
- 返済期間
-
年
※ボーナスは自動で年2回分で計算されます。
近隣の物件
茅ヶ崎市柳島第11 新築戸建 全8棟7号棟
4,180万円
-
3LDK+S(納戸)(95.58㎡)
物件は、住宅性能評価制度において第三者機関の評価員から住宅性能を(設計、建設)取得しています。 火災保険の地震保険については最大50%割引となる物件です。 当社へお問合せを頂いたお客様には担当者が責任を持ってご説明からさせて頂きますのでお気軽にお問合せ下さい。 スカイガーデンには経験豊富なスタッフが揃っています!! また、自社施工によるリノベーションやリフォーム工事、住宅ローンや保険、不動産に関する税金法律その他各種手続きのことなど何でもお気軽にご相談ください。 お客様にいかに喜んでいただけるかを心がけています。 ●営業時間 午前9時00分~午後7時00分 (定休日:毎週火曜日、毎週水曜日) 営業時間内はお電話でのお問い合わせがスムーズにご案内できます。 お気軽にお電話ください。