【外観】
- 建物面積
- 101.43㎡
- 築年月
- 2025年8月(新築)
-
TVモニタ付きインターホン
-
カウンターキッチン
-
浴室乾燥機

風呂
キッチン
外観- 販売戸数
- -
- 総戸数
- -
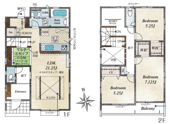
- 間取り / 詳細
- 3LDK
- 向き
- -
- 建物面積(坪数)
- 101.43㎡(30.68坪)
- 土地面積(坪数)
- 135.81㎡(41.08坪)
- 建ぺい率 /
容積率 - 60%/200%
- 築年月
- 2025年8月(新築)
- 駐車場 /
月額料金 - 有 0円
- 土地権利
- 所有権
- 土地
(敷金 / 保証金) - - / -
- 建物構造
- 木造 / 2階建
- 傾斜地部分面積
- -
- 路地状敷地
- -
- 私道負担面積
- -
- セットバック
- 記載なし
- 高圧線下面積
- -
- 施工会社
- -
- 用途地域
- 第一種中高層住居専用
- 地目 / 地勢
- 宅地 / -
- 接道状況
- 一方(南 公道 4.5m)
- 国土法届出要否
- 不要
- 都市計画
- 市街化区域
- 総区画数 /
販売区画数 - -/-
- 現況
- 完成済み
- その他
法令上の制限 - -
- 取引態様
- 仲介
- 引渡し
- 相談
- 取引条件の
有効期限 - 2025年11月27日
- 設備条件
-
- フローリング / プロパンガス / 公営水道 / 公共下水 / 駐車2台可 / 耐震構造 / 食器洗い乾燥機 / システムキッチン / カウンターキッチン / 浴室乾燥機 / トイレ2ヶ所 / 床下収納 / TVモニタ付インターホン
- 設備(その他)
-
-
-
- 物件番号
- 95299528
- 管理コード
- 100134714660
- 建築確認番号
- 第R07SHC104962号
- 情報更新日
- 2025年11月13日
- 次回更新予定日
- 2025年11月27日
- 備考
- 機能的で使いやすいシステムキッチン付きなので、お料理を楽しめます。2方向からの日当たりがありますので、明るさも十分です。耐震構造で頑丈な造りをしているので、地震の衝撃も抑えてくれます。当社はお客様が快適に暮らせるよう、住まい探しのサポートをしております。ご希望の条件があれば、当社スタッフにお聞かせください。
-
コンビニエンスストア
ファミリーマート 平塚入野店
523m(7分)
-
ドラッグストア
クリエイト薬局平塚入野店
588m(8分)
-
公園
立堀親水公園
604m(8分)
-
内科
宮尾内科クリニック
606m(8分)
-
スーパー
しまむらストアー 長持店
621m(8分)
-
幼稚園
花乃幼稚園
678m(9分)
-
公園
金田ちびっこ広場
713m(9分)
-
銀行
JA湘南金田支所
727m(10分)
-
公民館
金田公民館
798m(10分)
-
保育園
中原保育園
966m(13分)
-
公民館
中原公民館
1041m(14分)
-
市役所・区役所
平塚市役所 大野子どもの家
1111m(14分)
-
小学校
平塚市立金田小学校
1194m(15分)
-
公園
伊勢山公園
1221m(16分)
-
市役所・区役所
平塚市役所 子育て支援センター
1288m(17分)
-
銀行
平塚信用金庫中原支店
1362m(18分)
-
郵便局
平塚御殿郵便局
1441m(19分)
-
中学校
平塚市立金旭中学校
2276m(29分)
- 月々の支払額
- 9.6円
- 購入希望物件価格
-
万円
- 頭金
-
万円
- 金利
-
%
- 返済額(ボーナス1回分)
-
万円
- 返済期間
-
年
物件の特徴
セールスポイント
利便性に優れ、家族で暮らすにもピッタリな3LDKです。3口コンロが付いているので、同時にたくさん料理できるので毎日忙しい人におすすめです。新築の戸建てで気分爽快な生活を送りましょう。居心地の良い環境が家中で味わえる、全室2面の窓付きです。不動産をお探しの方はいませんか。当社ではあなたの頼れる不動産探しのパートナーになれるよう、不動産情報を豊富に取り扱っております。ぜひご検討ください。
ポイント
TVモニタ付インターホン 浴室乾燥機 トイレ2ヶ所 3口以上コンロ LDK20帖以上
担当者のコメント
パノラマ画像
基本情報
設備条件
その他
周辺施設
支払いシミュレーション
※ボーナスは自動で年2回分で計算されます。
近隣の物件
平塚市入野 新築戸建 全6棟4号棟
3,180万円
-
3LDK(101.43㎡)
中村 千夏
物件は、住宅性能評価制度において第三者機関の評価員から住宅性能を(設計、建設)取得しています。
火災保険の地震保険については最大50%割引となる物件です。
当社へお問合せを頂いたお客様には担当者が責任を持ってご説明からさせて頂きますのでお気軽にお問合せ下さい。
スカイガーデンには経験豊富なスタッフが揃っています!!
また、自社施工によるリノベーションやリフォーム工事、住宅ローンや保険、不動産に関する税金法律その他各種手続きのことなど何でもお気軽にご相談ください。
お客様にいかに喜んでいただけるかを心がけています。
●営業時間 午前9時00分~午後7時00分 (定休日:毎週火曜日、毎週水曜日)
営業時間内はお電話でのお問い合わせがスムーズにご案内できます。
お気軽にお電話ください。