【外観】外はこのようになっています
- 建物面積
- 97.90㎡
- 築年月
- 2025年12月(新築)
-
カウンターキッチン
-
独立洗面台

外観
キッチン
風呂
リビング
寝室- 販売戸数
- -
- 総戸数
- -
- 間取り / 詳細
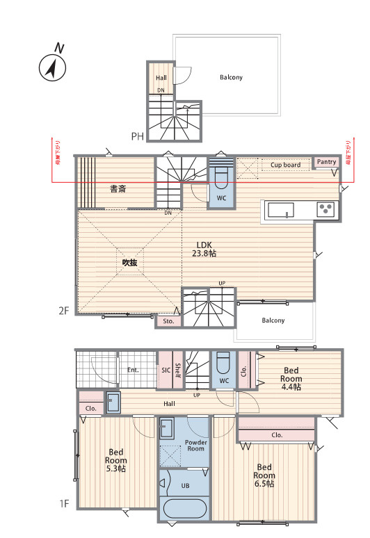
- 3LDK
- 向き
- -
- 建物面積(坪数)
- 97.90㎡(29.61坪)
- 土地面積(坪数)
- 123.41㎡(37.33坪)
- 建ぺい率 /
容積率 - 40%/160%
- 築年月
- 2025年12月(新築)
- 駐車場 /
月額料金 - 有 0円
- 土地権利
- 所有権
- 土地
(敷金 / 保証金) - - / -
- 建物構造
- 木造 / 2階建
- 傾斜地部分面積
- -
- 路地状敷地
- -
- 私道負担面積
- -
- セットバック
- 無
- 高圧線下面積
- -
- 施工会社
- -
- 用途地域
- 第一種低層住居専用/第二種中高層住居専用
- 地目 / 地勢
- 宅地 / -
- 接道状況
- 一方(西 私道 4.0m 間口 4.0m)
- 国土法届出要否
- 不要
- 都市計画
- 市街化区域
- 総区画数 /
販売区画数 - -/-
- 現況
- 完成済み
- その他
法令上の制限 - -
- 取引態様
- 仲介
- 引渡し
- 相談
- 取引条件の
有効期限 - 2026年02月26日
- 設備条件
-
- 海が近い / バルコニー / ルーフバルコニー / 都市ガス / 公営水道 / 公共下水 / 駐車2台可 / システムキッチン / カウンターキッチン / 洗面台 / トイレ2ヶ所 / 独立洗面台 / 収納豊富 / 宅配ボックス
- 設備(その他)
-
-
-
- 物件番号
- 97957192
- 管理コード
- 100136190450
- 建築確認番号
- 第2025SBC-確00472H号
- 情報更新日
- 2026年02月12日
- 次回更新予定日
- 2026年02月26日
- 取扱会社
-
- スカイガーデン株式会社 藤沢店
- 神奈川県藤沢市鵠沼神明1丁目5番16号 ケインズビル 3階
- TEL:0120-500-791
- 神奈川県知事 (2) 第29933号
- 加盟団体 公益社団法人 神奈川県宅地建物取引業協会
公益社団法人 首都圏不動産公正取引協議会会員
公益財団法人 東日本不動産流通機構会員
- 備考
- 浜見山公園まで376mです。歩いて104mのところに藤沢東海岸郵便局があります。建物面積は97.9平米となっており広さも十分ではないでしょうか。東海道本線辻堂周辺での住まい探しで何かご不明な点などがございましたら、otoiawase-fujisawa@sky-garden.co.jpにてご質問ください。
-
郵便局
藤沢東海岸郵便局
104m(2分)
-
コンビニエンスストア
ファミリーマート 湘南東海岸店
372m(5分)
-
公園
浜見山公園
376m(5分)
-
ドラッグストア
クリエイトSD辻堂東海岸店
436m(6分)
-
公園
辻堂海浜公園
463m(6分)
-
小学校
藤沢市立辻堂小学校
514m(7分)
-
スーパー
西友 辻堂店
549m(7分)
-
その他
辻堂海水浴場
767m(10分)
-
中学校
藤沢市立湘洋中学校
953m(12分)
-
保育園
辻堂あいまーる保育園
1015m(13分)
-
保育園
藤沢市浜見保育園
1022m(13分)
- 月々の支払額
- 9.6円
- 購入希望物件価格
-
万円
- 頭金
-
万円
- 金利
-
%
- 返済額(ボーナス1回分)
-
万円
- 返済期間
-
年
物件の特徴
セールスポイント
浜見山公園まで376mです。宅配ボックス付きの物件です。20帖以上もあるリビングならお客様が多くても安心です。建物面積97.9㎡もあるので有効活用しましょう。藤沢市の戸建てをお求めの方で何か気になる事がございましたら、地域情報に詳しいスカイガーデンまでお申し付け下さい。連絡先は、otoiawase-fujisawa@sky-garden.co.jpです。
ポイント
吹抜け バルコニー クロゼット3ヶ所 小学校 徒歩10分以内 2面採光
担当者のコメント
パノラマ画像
基本情報
設備条件
その他
周辺施設
支払いシミュレーション
※ボーナスは自動で年2回分で計算されます。
藤沢市辻堂東海岸1丁目3期 新築戸建 全2棟1号棟
6,490万円
-
3LDK(97.90㎡)
スカイガーデン株式会社 藤沢店
この度は、数ある不動産会社の中からスカイガーデン株式会社の物件情報をご覧になって頂き誠に有難う御座います。 スカイガーデンには経験豊富なスタッフが揃っています!! また、自社施工によるリノベーション、リフォーム工事、住宅ローンや保険、不動産に関する税金法律その他各種手続きのことなど何でもお気軽にご相談ください。 お客様にいかに喜んでいただけるかを心がけています。 ●営業時間 午前9時00分~午後7時00分 (定休日:毎週火曜日、毎週水曜日) 営業時間内はお電話でのお問い合わせがスムーズにご案内できます。 お気軽にお電話ください。 スタッフ一同、心よりお待ちしておりますので宜しくお願い致します。